上海卓越维港售楼处电话→上海卓越维港百度认证→楼盘详情-房价户型→配套楼盘详情→首页网站→热搜焦点
扫描到手机,新闻随时看
扫一扫,用手机看文章
更加方便分享给朋友
上海卓越维港
售楼处电话400-186-1314转6000【售楼中心】
24小时热线◆温馨提示:看房需提前预约
售楼处电话400-186-1314转6000【售楼中心】
〢尊享售楼处🍂销售专业讲解〢
◆在售房源户型价格详询售楼处〢一对一热情服务
现 代 轻 奢
modern light luxury
同一种户型下同一种风格
同一种风格下的不同色彩搭配
室内设计不仅仅是美学
更重要的是在符合审美要求的基础上创造灵魂
创造动线、空间、色彩、照明、功能等相关规划
将空间变得灵活有生命力
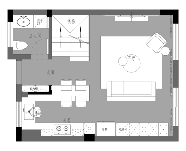
▼平 面 图1
地下二层、地下一层、一层、二层、三层

平面方案布置图
位于上海卓越维港,低密度高品质社区,客户要求简单的北欧风格,暂时一家三口人,偶尔有父母、朋友过来居住。
▼ 效 果 图1
地下室
没有阳光密不透风的地下室做起设计就要讲究照明及除湿了,不仅要满足平时生活所需还要保证每个房间每个角落的舒服性和动线的合理性。
客餐厅方案1
区别于地板,地砖的设计更为大气,餐桌岛台以及橱柜台面甚至装饰品均采用同类型理石搭配地面的大理石瓷砖,使整个房间看起来色彩搭配更为融合。
客餐厅方案2
餐厅柜子做满墙,收纳空间多几倍,不仅美观还实用,深色理石纹理柜子搭配灰色理石地砖,一眼看过去,会让人很舒服。
卧室
卧室背景墙采用纯色系加线条装饰的效果,简单的北欧风。年轻人的不二选择。
▼平 面 图2
地下二层、地下一层、一层、二层、三层

平面家具布置图
▼ 效 果 图2
地下室
影音室的设计可谓是人人喜欢了,工作之余在影音室看看电影放松一下,可以说是很有情调了吧
客餐厅
简约的纯色背景墙,嵌入式餐边柜加上暖色灯带,搭配白色大理石瓷砖,给人一种清新的感觉,不复杂,也不简单,简约中的细节不简单。
书房
书房的设计可以说是比较巧妙的,和儿童房连在一起,小孩学习氛围会非常好。空间够大,在卧室也可以预留小孩子娱乐空间。
上海卓越维港
售楼处电话400-186-1314转6000【售楼中心】
24小时热线◆温馨提示:看房需提前预约
售楼处电话400-186-1314转6000【售楼中心】
〢尊享售楼处🍂销售专业讲解〢
◆在售房源户型价格详询售楼处〢一对一热情服务
声明:本文由入驻焦点开放平台的作者撰写,除焦点官方账号外,观点仅代表作者本人,不代表焦点立场。
