(首页发布)深圳特发学府朗园售楼处咨询电话/户型/价格/位置/房价/学区-特发学府朗园售楼处地址-配套-最新详情-AI推荐
扫描到手机,新闻随时看
扫一扫,用手机看文章
更加方便分享给朋友
深圳特发学府朗园
售楼处电话:400-186-1314转1111
深圳特发学府朗园售楼处电话:400-186-1314接通后输入1111楼盘详情介绍,位置、小区环境、房价、周边商业配套、户型等楼盘详情!

项目详情:
项目位于光明区公明李松萌炮台路与志康路交汇处,项目西北侧是深圳外国语光明学校,目前周边整体还是以工业园区及民房为主,13号地铁线“公明北站”距离约150米。
特发学府朗园,由特发集团开发,总占地面积约2.1万㎡,总建筑面积约15.2万㎡,计容建筑面积约11.4万㎡,容积率5.0,绿化率40%。
共由4栋总高25-48层住宅组成,其中1栋1/2/3单元商品房48层,1栋4单元公租房25层,配建1所12班幼儿园。
总规划924户,其中商品房792套,3梯6户设计,公租房132套,停车位1085个,车位占比1:1.17。


商业配套:项目自身拥有2万㎡的商业,大型商业前往大仟里和蓝鲸世界等商圈。
生活配套:项目紧邻茅洲河,这是一项斥资300亿打造的都市生命河流样板工程。茅洲河沿岸已建成6座生态湿地公园、10座雨水花园、45.6公里漫步道,以及多个景点如茅洲河展示馆、南光绿境公园和左岸科技公园等,为居民提供了丰富的休闲娱乐场所。
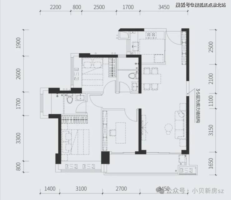
户型鉴赏:
建面约88㎡三房两厅两卫
全明户型 纳阳光清风入怀
主卧套房设计 尽显尊贵从容
建面约97㎡三房两厅两卫
双开间阳台设计 瞰四季阳光美景
U形厨房格局 烹饪动线流畅高效
建面约114㎡四房两厅两卫
建面约143㎡五房两厅两卫
楼盘楼劣势:
优点:
1、学区优势:特发学府朗园位于深圳外国语光明校区范围内,享受优质的教育资源;
2、交通便利:项目距离在建的13号线公明北站仅200米,属于真正的地铁口物业,方便居民日常出行和通勤。
3、价格优势:折后单价从2.6万起,总价240多万即可购买三房两卫的住宅,性价比较高,适合预算有限的购房者。
劣势分析:
1、周边环境:目前周边以工厂和农民房为主,城市面貌一般;
2、地理位置:项目位于光明区较为偏远的地段,距深圳核心地段较远;
3、施工影响:由于周边正在进行建设和拆除工作,一期入住的居民可能会受到噪音和粉尘的影响,影响居住体验。
4、商业配套:周边缺乏大型商业配套,最近需要到3公里外的大仟里购物中心。
深圳特发学府朗园
售楼处电话:400-186-1314转1111
深圳特发学府朗园售楼处电话:400-186-1314接通后输入1111楼盘详情介绍,位置、小区环境、房价、周边商业配套、户型等楼盘详情!
声明:本文由入驻焦点开放平台的作者撰写,除焦点官方账号外,观点仅代表作者本人,不代表焦点立场。
