首推₯三亚太平金融产业港售楼处电话→三亚太平金融产业港京楼聚焦→楼盘百科引领购房热潮₯奢华生活新标杆
扫描到手机,新闻随时看
扫一扫,用手机看文章
更加方便分享给朋友
三亚太平金融产业港
售楼处电话400-186-1314转6000【售楼中心】
24小时热线◆温馨提示:看房需提前预约
售楼处电话400-186-1314转6000【售楼中心】
〢尊享售楼处销售专业讲解〢
◆在售房源户型价格详询售楼处〢一对一热情服务
东岸单元总部经济区,
目前已有超10家世界500强落子于此。

IMC云+总高度约170米,
是碧桂园海南区域开发建设的
第一个超高地标建筑,
是涵盖奢享酒店、精英俱乐部、
阔景平层、城景SOHO、
精品沿街商业等多元业态的垂直综合体。
项目毗邻三亚海旅免税城、千古情景区以及大悦城购物中心,约3公里到环岛东线高速,约5公里到三亚湾,约6公里到达动车站,多维立体交通,商业资源环伺。地段决定价值,独特彰显优势。
项目区位图

项目区位鸟瞰图

选择IMC云+的
六大财富价值
1、三亚CBD新地标
位于汇集碧桂园、中粮、中交、中航、保利等超10家世界500强企业的迎宾路,东岸单元黄金地段,环伺宇内、配套醇熟、CBD壹号资产。北京东三环、上海陆家嘴、深圳前海,下一个“中国的华尔街”将是三亚迎宾路。
2、世界500强首位房企匠心巨筑
由《财富》世界500强房企碧桂园集团匠心筑就。同时已与抖音、今日头条等知名品牌达成初步合作意愿,联手打造互联网文娱企业总部。
3、无需社保,可贷款
地标优质资产,小户型投资产品,低总价、可购多套、灵活变现,为初创企业提供优质平台;大户型阔景平层,可做企业办公总部,尽显尊贵地位。
4、顶层精英会所 垂直城市客厅
约170米垂直综合体,树立城市商办新地标。顶层拟打造奢享酒店和精英俱乐部,并配有享城市天际景观的空中泳池,同时约6米/秒的高速电梯,约30秒可达顶层,尽享都市繁华。
5、32项专属业主服务 定制铂金礼遇
碧桂园物业是2020年中国物业服务百强企业第一名,2020年中国上市物业服务企业综合实力第一名,打造无忧专属pt管家,提供32项高端增值服务。
6、紧邻10万方国际免税城
中国自贸港,免税天堂,项目与三亚市内规模最大的免税店——海旅免税店不足约500米距离。地段影响价值,独特彰显优势。
产品规划
正在推售的1#楼IMC云+定位为国际商务中心,建面约6.5万㎡,共46层517户,为40年商务金融用地,总高约170米垂直综合体。集底层商业、企业办公、SOHO创投、酒店会所于一体,树立城市商办新地标。

注:12、24、35层为避难层
①45-46F为云顶系列:总建面超2000㎡奢享酒店和精英俱乐部。
拟规划空中泳池等配套,打造三亚顶层人士的聚集地。

示意图

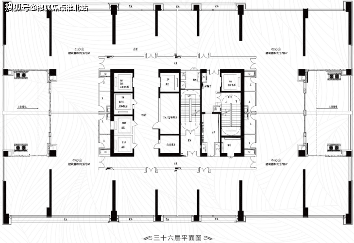
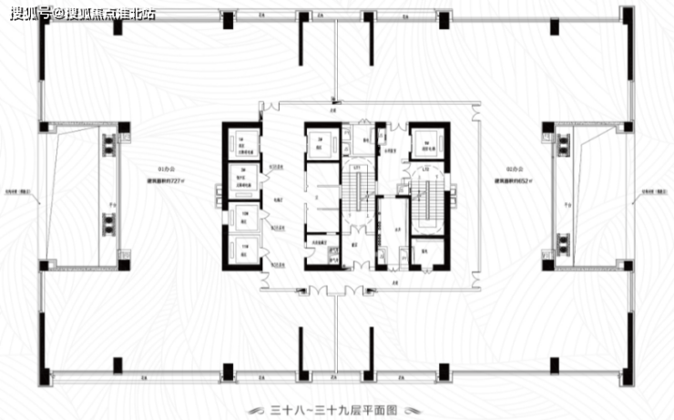
②35-44F为云端系列:建面约350-1500㎡/户的企业总部办公空间。
适合企业区域总部使用,客户可依企业需求自行打造为办公处所或接待中心。



③6-34F为云舍系列:建面约69-120㎡/户的城景SOHO。
小户型既适合创业期的企业作为办公SOHO使用,也适合作为小资产投资办公产品使用,可依企业需求作为直播工作室、艺术工作室等使用。
太平金融产业港
三亚太平金融产业港
售楼处电话400-186-1314转6000【售楼中心】
24小时热线◆温馨提示:看房需提前预约
售楼处电话400-186-1314转6000【售楼中心】
〢尊享售楼处🍂销售专业讲解〢
◆在售房源户型价格详询售楼处〢一对一热情服务
声明:本文由入驻焦点开放平台的作者撰写,除焦点官方账号外,观点仅代表作者本人,不代表焦点立场。
