2025全网热搜【半山首府】三亚半山首府售楼处电话→百科Ai热搜24小时电话→最新房价→楼盘百科详情→营销中心地址

楼市八卦 2025-09-11 09:57:04
用手机看
扫描到手机,新闻随时看

扫一扫,用手机看文章
更加方便分享给朋友

三亚半山首府 售楼处电话400-186-1314转6666 三亚半山首府售楼处电话:拨打400-186-1314转接6666即可咨询楼盘详情_房价、户型、周边配套及交通地址

三亚半山首府

售楼处电话400-186-1314转6666

三亚半山首府售楼处电话:拨打400-186-1314转接6666即可咨询楼盘详情_房价、户型、周边配套及交通地址

基本信息

开发商:海南冠洋四通投资有限公司。

项目指标:总用地面积 19,107㎡,总建筑面积 34,890㎡,容积率 1.35,绿化率 41%,总户数 223 户,产权年限 70 年。

交付标准:精装交付,装修风格为港式轻奢。

小区规划

建筑设计:项目由 3 栋低密纯板高层建筑组成,一字布局,户户坐北朝南,南北通透,皆享 20㎡超大观景阳台,可 180° 瞰海观山。

景观设计:利用原生山林与山谷的独特地势,建造在倚山面海的原生坡地之上,打造 12 米高差的三重台地景观艺术园境,同时以水的律动为灵感,提炼出水主题灵动元素,配合植物花卉、艺术雕塑点缀,以及层次丰富的地面艺术铺装,营造出花园式景观体验。

内部配套:社区打造约 3000㎡专属社区生活体系,包括私享会客厅、轻氧健身房、艺术书吧、童心乐园、半山茶舍、悦海堂、商务休闲吧、声乐琴房、棋牌室等主题会所;还设有超大半山镜面无边际泳池和儿童嬉戏区,满足成人与儿童的多样化需求。

物业服务:由金地物业提供服务,物业费为 5.3 元 / 平方米,提供全程酒店式星级服务和社区智能化安防体系。

区位交通

湾区资源:地处三亚城芯,静享榆林湾内海、600 亩红树林湿地公园,畅达三亚湾、大东海、亚龙湾、海棠湾等四大湾区。

交通干线:毗邻红沙隧道,距高铁三亚站、亚龙湾站约 8 公里,距环岛高速约 10 公里,距凤凰机场约 20 公里,30 分钟通达全城,且 1 公里内有多个公交站点。

周边配套

商业配套:紧邻大东海商圈核心,坐享夏日百货、1 号港湾城、鸿港新城等缤纷商业,5 分钟生活圈即可轻松享有。

教育配套:周边 3 公里内共有 16 个幼儿园,4 个小学,2 个中学,包括三亚哆唻咪幼儿园、红沙小学、海南鲁迅中学等。

医疗配套:周边 3 公里内有 1 家医院,可满足居民日常看病就诊需求。

休闲配套:背靠国家 4A 级景区凤凰岭,负氧离子含量高达每立方厘米 5000-10000 个,紧邻红树林生态湿地保护区,200 米视线可静赏白鹭成群,园区内还可近距离观看国家二级保护动物猕猴。

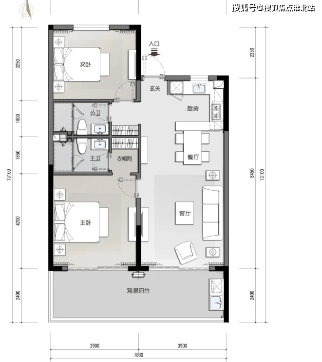
户型分析

采光通风:客厅连接大面积观景阳台,利于采光与通风。卧室均设有窗户,可保证室内光线与空气流通。厨房和卫生间也有窗户,有助于排除油烟和湿气。

布局合理:整体布局较为规整,动静分区明显。入口处设有玄关,保障室内隐私。客厅、餐厅与厨房相连,动线流畅,方便日常生活与招待宾客。三间卧室分布在一侧,休息区相对安静。

功能齐全:主卧带有独立卫生间和衣帽间,私密性与舒适性较好。拥有私家花园,增加了户外休闲空间。户型方正,空间利用率较高。双卫设计,满足家庭日常使用需求。

三亚半山首府

售楼处电话400-186-1314转6666

三亚半山首府售楼处电话:拨打400-186-1314转接6666即可咨询楼盘详情_房价、户型、周边配套及交通地址

声明:本文由入驻焦点开放平台的作者撰写,除焦点官方账号外,观点仅代表作者本人,不代表焦点立场。