上海佘山望售楼处电话→上海佘山望百度认证→楼盘详情-房价户型→配套楼盘详情→首页网站→热搜焦点
扫描到手机,新闻随时看
扫一扫,用手机看文章
更加方便分享给朋友
上海佘山望
售楼处电话400-186-1314转6000【售楼中心】
24小时热线◆温馨提示:看房需提前预约
售楼处电话400-186-1314转6000【售楼中心】
〢尊享售楼处🍂销售专业讲解〢
◆在售房源户型价格详询售楼处〢一对一热情服务

01
静·沁
一迳抱幽山,居然城市间。
鱼龙隐处,烟雾深锁渺弥间
上海佘山,作为国家级旅游度假区,拥有全上海得天独厚的森林和山地资源,包括辰山植物园、佘山国家森林公园、月湖雕塑公园等。佘山高尔夫、欢乐谷、世茂深坑酒店等提供了高能级的配套。
佘山望,由雅居乐地产携手新城、旭辉,三大千亿巨擘,联袂致礼上海,为佘山板块带来新一代栖心墅品。现代中式建筑风格,以东方美学的表现手法,将佘山的东方自然与浓郁的人文底蕴相结合,呈现自然风韵与现代设计的完美融合。
项目地处上海市松江区,作为上海周边传统的城市五大要区,结合近年来的老城更新进程,汇聚各类城市公共资源和人文生活底蕴,将焕发出独特的稀缺价值——“景观资源集中”“人文底蕴深厚”“生活氛围醇熟”
02
境·界
曾经沧海难为水,除却巫山不是云
取次花丛懒回顾,半缘修道半缘君。
景观和建筑一样用抽象的概念来表达。建筑师利用传统的空间构成以及自然园林景观来表达出传统的氛围,更具质感。
园林中的山水文化意象以及上海独有的海派文化精神,以“山水新赋”作为主题,利用现代创新手法掇山理水,创造出步移景异、面向未来的新型展园景观。
上海佘山望
03
镜·鉴
郡邑浮前浦,波澜动远空。
襄阳好风日,留醉与山翁。
建筑汲取山水意境及格局在城市中建立自然美景,融入自然环境,使得环境意境自然流入建筑内部。通过这种设计手法,能够更好地展现美景。
设计理念

◎体块生成
设计以“山水相映”为概念、通过“醒目、自然”的设计策略,建筑师充分汲取文脉特质,提取山形错落行意的空间组合关系,使建筑更沉浸于外部山水相依的环境中。形体错位设置,削弱压迫感,并形成主入口灰空间,二层退台景观最大化,北观佘山东观辰山植物园。
形成内向型围合空间,同时加以庭院、廊架、影壁等元素,丰富内部空间层次。使示范区在周围喧嚣的环境中依然可以获得内部空间的宁静。流畅的线条和起伏的轮廓,给人以山水之感,用现代的设计手法重塑空间及文人的底蕴,将山水缓缓铺陈。
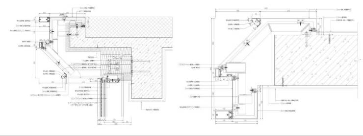
构造推敲
◎剖面
◎节点大样
材料语言
示范区整体选用高雅的香槟金铝板,强调现代与精致。结合不同的空间合理划分材料范围,通过高反玻璃打造“消隐”的场景,强调“山行”“水意”同时在工艺上做到精益求精。
◎效果图
上海佘山望
售楼处电话400-186-1314转6000【售楼中心】
24小时热线◆温馨提示:看房需提前预约
售楼处电话400-186-1314转6000【售楼中心】
〢尊享售楼处🍂销售专业讲解〢
◆在售房源户型价格详询售楼处〢一对一热情服务
声明:本文由入驻焦点开放平台的作者撰写,除焦点官方账号外,观点仅代表作者本人,不代表焦点立场。
