首页【豪庭南苑】售楼处电话→【豪庭南苑】售楼中心首页网站→【豪庭南苑】楼盘百科详情-户型配套
扫描到手机,新闻随时看
扫一扫,用手机看文章
更加方便分享给朋友
海口豪庭南苑
售楼处电话:400-186-1314转1111(中介勿扰)
售楼处电话:400-186-1314接通后输入1111楼盘详情介绍,位置、小区环境、房价、周边商业配套、户型等楼盘详情;预约咨询—提前联系咨询售楼中心置业顾问—进行预约登记来访!
豪庭南苑
🏛开发商:海南海岛临空产业集团有限公司
物业公司:自持物业
项目占地面积:2.63万㎡
项目建筑面积:22.27万㎡
总户数:5400多套
🚖 车位:1:1(1872包括商业)
⭐开盘时间:/
⭐交房时间:2023年年底
在售的产品产权:70年
朝向:南北朝向
建筑形态:板楼
🏙容积率:5.5
绿地率:20%
♂物业费:2.78
水电费:民水民电
☸ 公摊:19%
在售:公寓:二区4号楼
住宅:三区4号楼
商铺:二区,五区(二区:1,2,3楼。五区:一拖二)
写字楼:三区2号楼(一栋卖)
在售产品:
公寓:7梯24户,36层,层高3.6米,面积58.54㎡、81.88、153.7㎡-154.09㎡,一楼商业/架空(剩余315套左右)
一房:A户型:58.54㎡
三房:B户型:153.7-154.09
一房:C户型:81.88㎡
总价116~308万
均价:20000 元/㎡起,精装交房
交房时间:现房
住宅(总高29层)
面积:105-172㎡板式(剩余100多套)
三区2号楼
面积:320㎡,价格:2.4万
三区4号楼栋
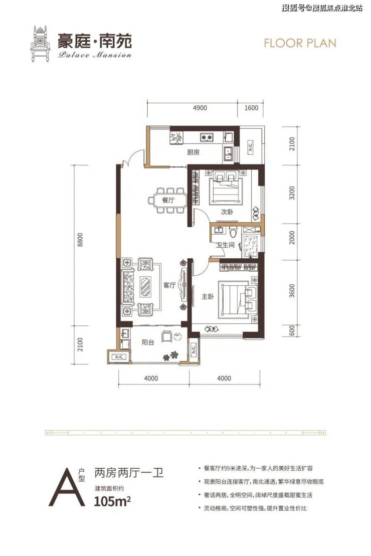
A户型105:两房两厅一卫
B户型105:两房两厅一卫
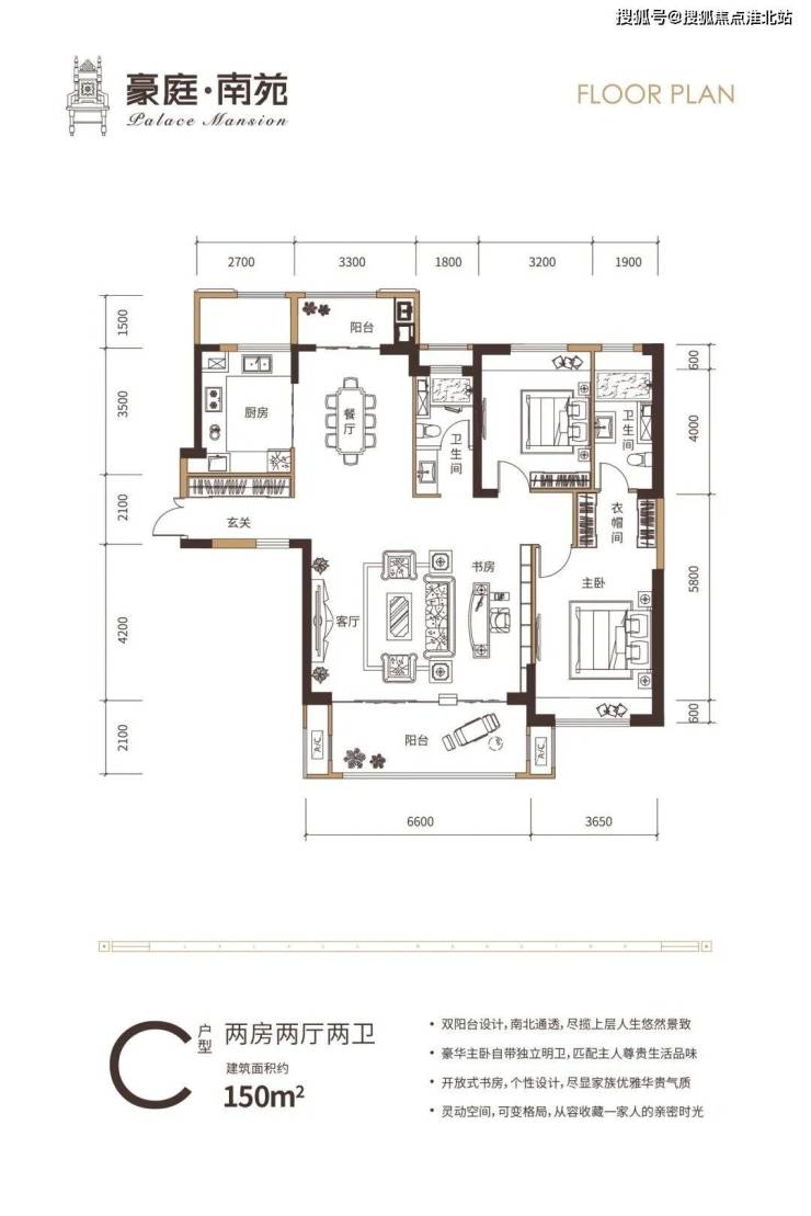
C户型150㎡:三房两厅两卫
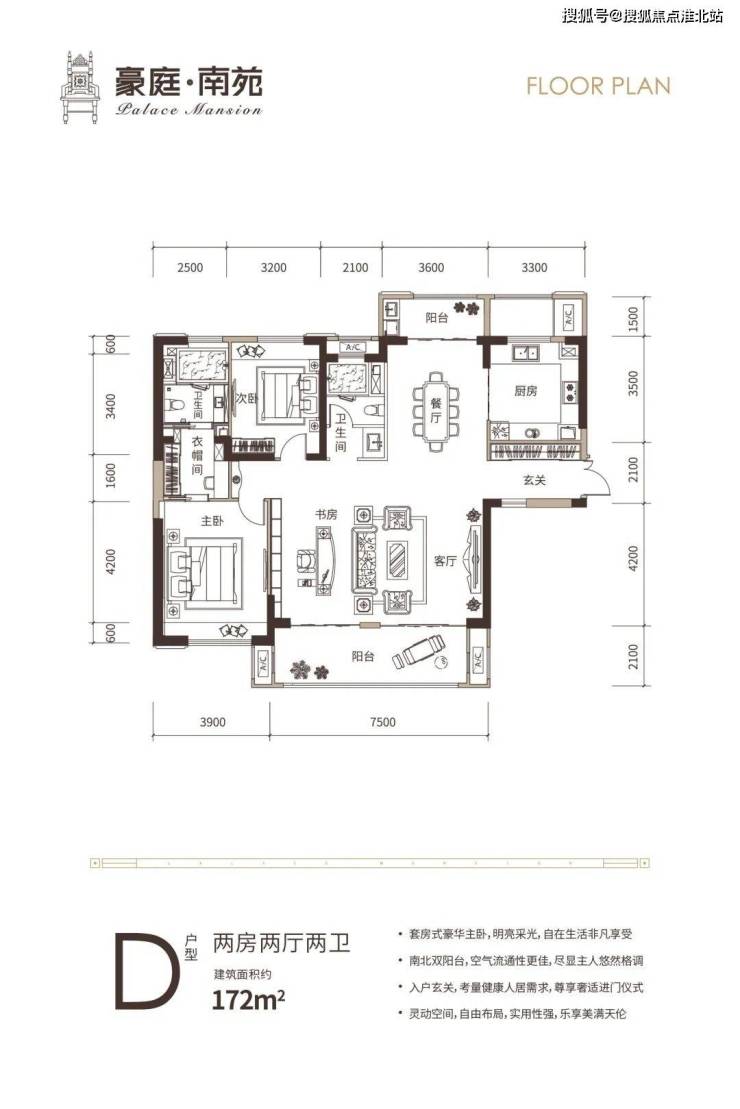
D户型172㎡三房两厅两卫
A、B户型为建面105平的2房刚需户型,全明空间,建面约8㎡的大阳台,朝南,极大满足生活需求;面积相对较小,总价较低,是年轻人置业的首选。
C户型建面约150㎡,双阳台设计,南北通透,主卧享有衣帽间及独立卫生间,6.6米宽的客厅可满足开放式书房设计,尽显书香人家华贵气质,同时6.6米宽景大阳台,享受无线开阔的视野,又可从容收藏一家人的亲密时光。
D户型建面约172㎡,同样是双阳台、南北通透,主卧比C户型稍微大一些,阔绰的套房式主卧,采光明亮,给主人一个舒适的私密空间;7.5米大客厅,实用性强,可根据实际需求,设计开放式书房或通过间隔设计多一间房,满足老人或孩子的居住需求,乐享天伦之乐。
海口豪庭南苑
售楼处电话:400-186-1314转1111(中介勿扰)
售楼处电话:400-186-1314接通后输入1111楼盘详情介绍,位置、小区环境、房价、周边商业配套、户型等楼盘详情;预约咨询—提前联系咨询售楼中心置业顾问—进行预约登记来访!
(免责声明:本篇分享非广告,所涉及的图文资料仅供参考,具体以最终签订的买卖合同为准,详情请咨询开发商热线400-186-1314转1111,部分图片素材来自网络,如有侵权请联系小编删除,感谢支持。)
声明:本文由入驻焦点开放平台的作者撰写,除焦点官方账号外,观点仅代表作者本人,不代表焦点立场。
