首页:海口金源国际售楼处电话→楼盘详情-热点聚焦-海口金源国际售楼处地址-楼盘百科详情→24小时热线电话→基础信息

楼市八卦 2025-10-01 11:10:36
用手机看
扫描到手机,新闻随时看

扫一扫,用手机看文章
更加方便分享给朋友

海口金源国际 售楼处电话400-186-1314转6000【售楼中心】 24小时热线◆温馨提示:看房需提前预约 售楼处电话400-186-1314转6000【售楼中心】 〢尊享售楼处🍂销售专业讲解〢 ◆在售房源户型价格详询售楼处〢一对一热情服务

海口金源国际

售楼处电话400-186-1314转6000【售楼中心】

24小时热线◆温馨提示:看房需提前预约

售楼处电话400-186-1314转6000【售楼中心】

〢尊享售楼处1v1销售专业讲解〢

◆在售房源户型价格详询售楼处〢一对一热情服

自贸港轻奢资产 · 城芯精装小户36-101/㎡

雄踞海口市凤翔西路核芯地段,坐拥都市便捷生活圈,揽主城区成熟配套。位于美兰机场、海口高铁东站两大交通枢纽之中轴,承凤翔路越江通道(规划中)、南渡江大桥、琼州大桥、文明东越江隧道快速接驳江东新区,沿龙昆南路、凤翔路、新大洲大道、椰海大道、滨江路联通全市。城起自贸港核芯发展城市核芯板块,充分享受城市崛起红利,拥揽主城区繁华生活,更享江东新区高光未来,价值高地,惟此珍藏!

配套梳理

🚗交通:

·距美兰机场约18公里

·距海口东站约1.7公里

·距文明东越江隧道约7公里

·距国贸商圈约8公里

·距国兴商圈约4.5公里

·距新城吾悦广场约2公里

·距凤翔湿地公园约1.5公里

·距海口市第四人民医院总部约2.5公里

·距海口市中医院分院约2.2公里

·距海南现代妇女儿童医院约2.7公里

🏫教育:瑞吉欧幼儿园、海口山高学校、海南白驹学校、海南中学、琼山侨中、府城中学、海南师范大学

🛒商场:新城吾悦广场、喜盈门生活广场、龙昆南大润发

🏥医疗:三甲928号部队医院、海南医学院、省妇幼保健院、福兴医院

🌽市场:凤翔农贸市场、山高农贸市场、南北水果市场

🌼公园:美舍河凤翔湿地公园、红城湖公园

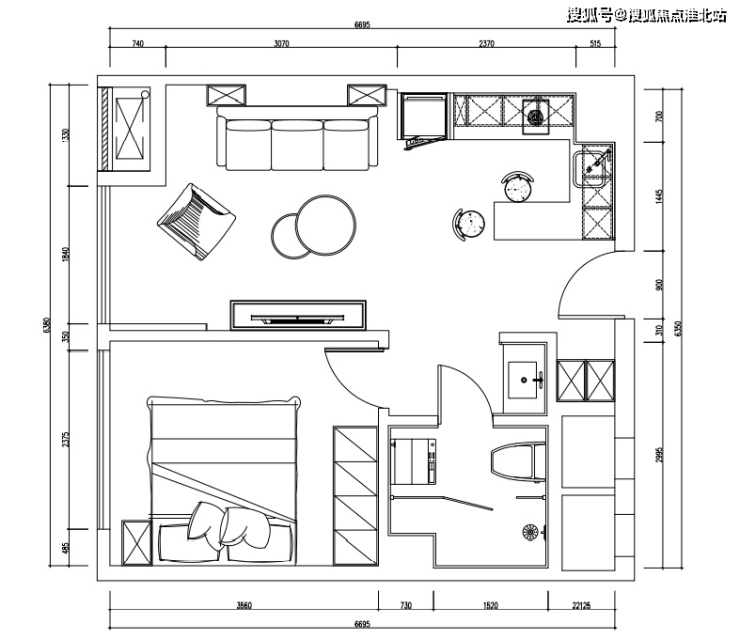
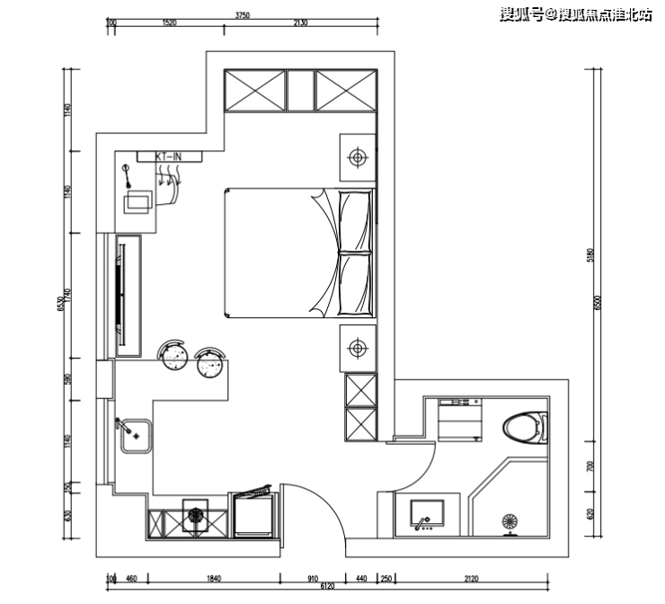
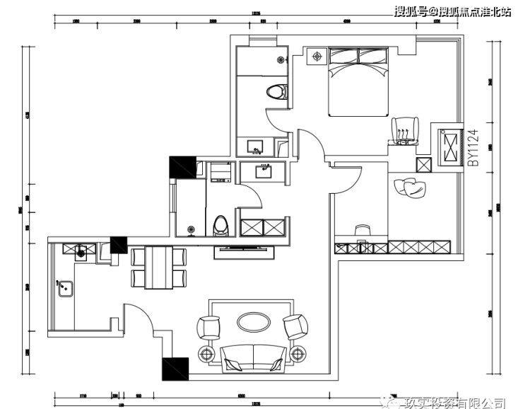
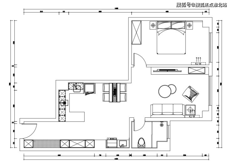
户型介绍;

在售户型

*35-51㎡开间

*54-78㎡一房一厅

*101㎡两房两厅两位

*均价13000元元/㎡(拎包入住)

海南海口金源国际

售楼处电话400-186-1314转6000【售楼中心】线上预约——尊享优价——售楼处中心——线上唯一售楼处售楼处电话400-186-1314转6000【售楼中心】专业的顾问 ——1对1的服务讲解——让您至享而归售楼处电话400-186-1314转6000【售楼中心】1. 房地产定义:房地产是一个综合且复杂的概念,从实物现象看,它是由建筑物与土地共同构成。土地可以分为未开发的土地和已开发的土地,建筑物则依附于土地而存在,与土地结合在一起。建筑物是指人工建筑而成的产物,包括房屋和构筑物两大类。房地产既是一种客观存在的物质形态,同时也是一项权利。作为一种客观存在的物质形态,房地产是指房产和地产的总称,包括土地和土地上永久建筑物及其所衍生的权利。2. 房产与地产:房产是指建筑在土地上的各种房屋,包括住宅商铺、厂房、仓库以及办公用房等。地产则是指土地及其上下一定的空间,包括地下的各种基础设施、地面道路等。3. 房地产特点:由于其位置的固定性和不可移动性,房地产又被称为不动产。4. 房地产拍卖:其拍卖标的也可以有三种存在形态,即土地(或土地使用权)、建筑物和房地合一状态下的物质实体及其权益。二、产权类型1. 商品房:是指房屋由开发商建设出售的,买受人取得房屋产权证后,可以自由对该房屋进行买卖、出租。2. 成本价住房:成本价房屋是房改售房的一种规定,职工以成本价购买房屋后职工拥有房屋的全部产权,职工再次上市出售,必须征得售房单位的同意。3. 标准价住房:标准价房屋是房改售房的一种规定,出售公有住房时,职工占有一部分产权,单位占有一部分产权,一般是职工占有94%的产权,单位占有6%的产权,职工以标准价购买的住房拥有部分产权,被称之为标准价房屋。4. 经济适用房:为照顾中低收入居民购房而实施优惠措施,建造经济适用房所用的土地是以划拨方式无偿给开发商使用的,这就是经济适用房价格低的主要原因。5. 房改房:房改房是指城镇职工根据规定,按照成本价或标准价购买的已建公有住房。三、房屋面积计算1. 建筑面积:指建筑物外墙外围所围成空间的水平面积,包含了房屋居住可用的实用面积、墙体柱体占地面积、楼梯走道面积、其他公摊面积等。2. 套内建筑面积:指成套商品房(单元房)的套内使用面积、套内墙体面积和阳台建筑面积之和。套内建筑面积=套内使用面积+套内墙体面积+阳台建筑面积。3. 使用面积:是建筑面积扣除公摊面积及墙体柱体所占用的面积后的直接供住户生活的净使用面积,俗称地砖面积。4. 公摊面积:指建筑物的楼梯、电梯井、外墙、公共门厅、走道、设备间、首层大堂及小区内其他一些配套设施的面积总和。5. 占地面积:建筑物基底及其功能需要占用的面积,也叫红线面积。6. 预售面积:指在商品房预售时按建筑设计图上尺寸计算的房屋面积。7. 销售面积:套内建筑面积+公摊的公用建筑面积;商品房按“套”或“单元”出售。8. 竣工面积:房屋竣工后实测的房屋面积。9. 共有建筑面积分摊系数:整栋建筑物的共有建筑面积与整栋建筑物的各套内建筑面积之和的比值。10. 预测面积:购房者在购买期房时,无法获知准确的房屋面积,开发商会根据设计图计算出房屋的预测面积,供购房者参考。11. 实测面积:房屋建成后,房产测绘单位会对房屋进行实际测量,得出的房屋面积即为实测面积,也是购房者实际使用的面积。12. 合同约定面积:购房者在签订合同时,开发商会在合同中注明预测面积,并按照这个面积计算房屋价格。合同中一般也会说明预测面积和实测面积存在误差的处理办法。13. 产权登记面积:购房者在买房后办理产权证时,产权证上会有一个面积说明,即产权登记面积,一般按照实测面积来登记。四、购房流程与注意事项1. 流程:o 准备阶段:购房者需明确购房需求和预算,选择合适的房源和开发商。o 看房选房:实地查看房源,了解房屋位置、户型、面积、装修等情况,同时对比不同房源的性价比。o 签订合同:与开发商签订购房合同,明确房屋价格、付款方式、交房时间、违约责任等条款。o 办理贷款:如需贷款购房,需向银行或公积金中心申请贷款,并提交相关材料和证明。o 验收房屋:在交房前进行房屋验收,确保房屋质量符合合同约定。o 办理产权证:缴纳维修基金和契税后,办理房屋产权证和土地使用证2. 注意事项:o 产权审查:要求卖方提供合法的产权证书正本,并查询产权证的真实性,以及拟购房产产权来源和产权记录。如房主、登记日期、成交价格、卖方产权的完整性、有没有被抵押、是否共享等。o 房源审查:搞清楚所购房源是否属于允许出售的房屋。一般公房必须要原单位盖章后才能出让。o 房屋质量:检查房屋质量,包括墙面、地面、天花板等是否有渗水、裂缝等问题。o 物业与配套:了解小区的物业管理水平、配套设施是否完善,以及周边的生活环境。o 合同细节:在签订合同时,务必仔细阅读合同条款,确保自身权益不受损害。五、房屋贷款与税费1. 房屋贷款:o 条件:贷款人需具有完全民事行为能力、常住户口、固定住所、正当职业和稳定收入来源,并具备按期偿还贷款本息的能力;抵押房产需产权明晰、符合免责声明::本人如无意中侵犯了某方知识产权,告诉即删

声明:本文由入驻焦点开放平台的作者撰写,除焦点官方账号外,观点仅代表作者本人,不代表焦点立场。