深圳丹华公馆售楼处电话_#楼盘详情_深圳丹华公馆售楼中心欢迎您【24小时热线】
扫描到手机,新闻随时看
扫一扫,用手机看文章
更加方便分享给朋友
深圳丹华公馆
售楼处电话400-186-1314转6000【售楼中心】
24小时热线◆温馨提示:看房需提前预约
售楼处电话400-186-1314转6000【售楼中心】
〢尊享售楼处销售专业讲解〢
◆在售房源户型价格详询售楼处〢一对一热情服务
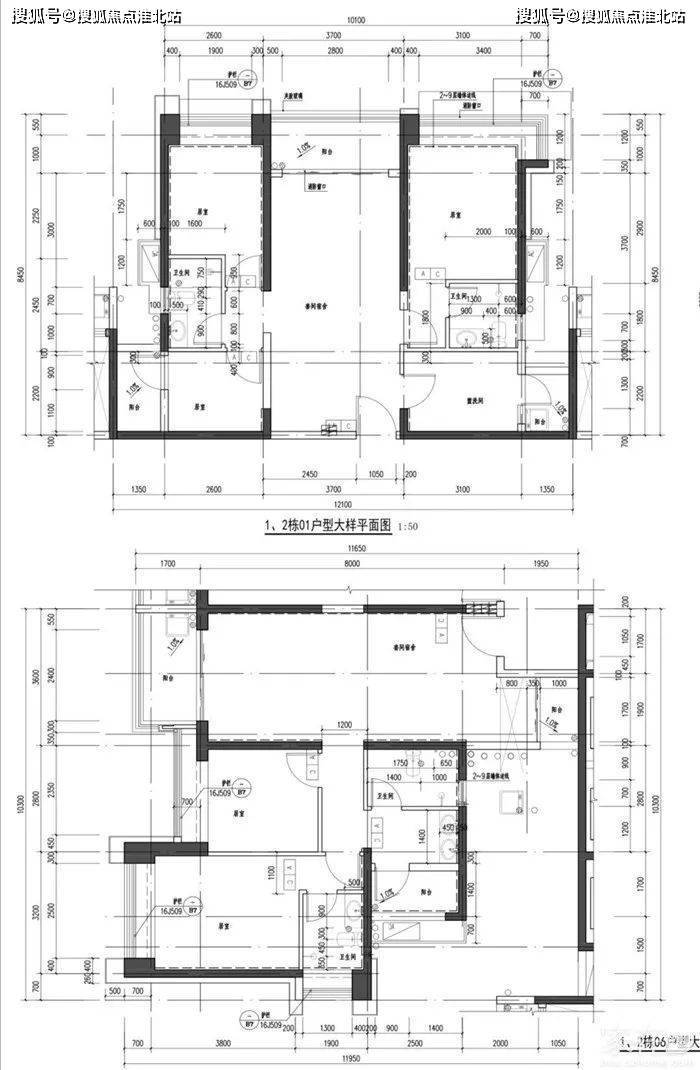
丹华公馆位于南山区留仙洞片区,西丽生态公园的东侧,与玖裕茗院紧挨着。
根据资料显示,项目建设用地面积40346.08平,总建筑面积318145.39平,计容建设面积222410.44平,其中宿舍建面202037平,幼儿园5600平,容积率5.51。
丹华公馆用地性质为R3居住用地,做一下科普,宅地分类:R1居住用地是高端的低密度居住用地,包括别墅区、独立式花园住宅、四合院等;R2居住用地是中、高密度居住用地;R3居住用地是指市政公用比较设施齐全、布局不完整、环境一般、或住宅与工业等用地有混合交叉的用地。
通俗而言,R3居住用地主要建宿舍为主,小面积单位。据置业顾问介绍,R3居住用地除了没有幼托配套、车位比较低外,其他配套跟R2住宅用地基本一致。大家比较关心的学区积分来看,目前是住宅>宿舍>公寓(看区域是否可以公寓积分申请)。如果担心申请入学积分问题,可先了解片区学校入取积分线及入学压力。
此前,与项目紧挨着的玖裕茗院同样为R3用地性质,玖裕茗院推售312套房源,面积30-100平,备案均价8.49万/平,冻资入围108批,开盘当天销售19套。
根据学区划分,项目目前在深中南山创新学校的招生范围内,学校位于项目的东南侧,深中南山创新学校 为九年一贯制公办学校,设计规模为54个教学班,其中36个小学教学班,18个初中教学班。
资料显示,项目并无商业规划,日常购物需前往万科云城,项目的西侧为西丽生态公园。
项目周边有两条地铁,5号线的留仙洞站和正在建设中的13号线石鼓站、西丽高铁站,最近的为石鼓站,直线距离约800米左右。
根据规划,西丽站设有13个站台25条线路比深圳北站多出2个站台5条线路,将超越深圳北站成为深圳第一大高铁站,将引入赣深客专、深茂铁路、深汕铁路、深珠城际 4条高铁 , 深惠城际、深莞增城际、2条珠三角城际铁路和轨道13、15、27、29号线 4条城市轨道,
声明:本文由入驻焦点开放平台的作者撰写,除焦点官方账号外,观点仅代表作者本人,不代表焦点立场。
