广州珠江天郦售楼处电话→珠江天郦24小时电话→珠江天郦2025最新房价→楼盘百科详情

楼市八卦 2025-09-22 11:49:00
用手机看
扫描到手机,新闻随时看

扫一扫,用手机看文章
更加方便分享给朋友

2025珠江天郦售楼处电话:400-186-1314转1111最新房价/详情 ◆◆售楼处电话:400-186-1314 接通后输入1111◆◆ ◆◆来电预约登记——〢尊享Vip一对一专业置业顾问讲解◆◆

珠江天郦

售楼处电话:400-186-1314转1111(中介勿扰)

售楼处电话:400-186-1314接通后输入1111楼盘详情介绍,位置、小区环境、房价、周边商业配套、户型等楼盘详情;预约咨询—提前联系咨询售楼中心置业顾问—进行预约登记来访!

广州国际金融城、琶洲、鱼珠片区--组成广州第二CBD

广州国际金融城,与珠江新城唇齿相依,关系密切,甚至是连片发展,在构建国际金融走廊上,可以说是珠江新城的延伸。

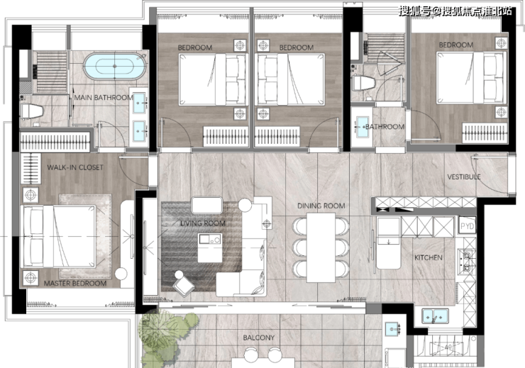
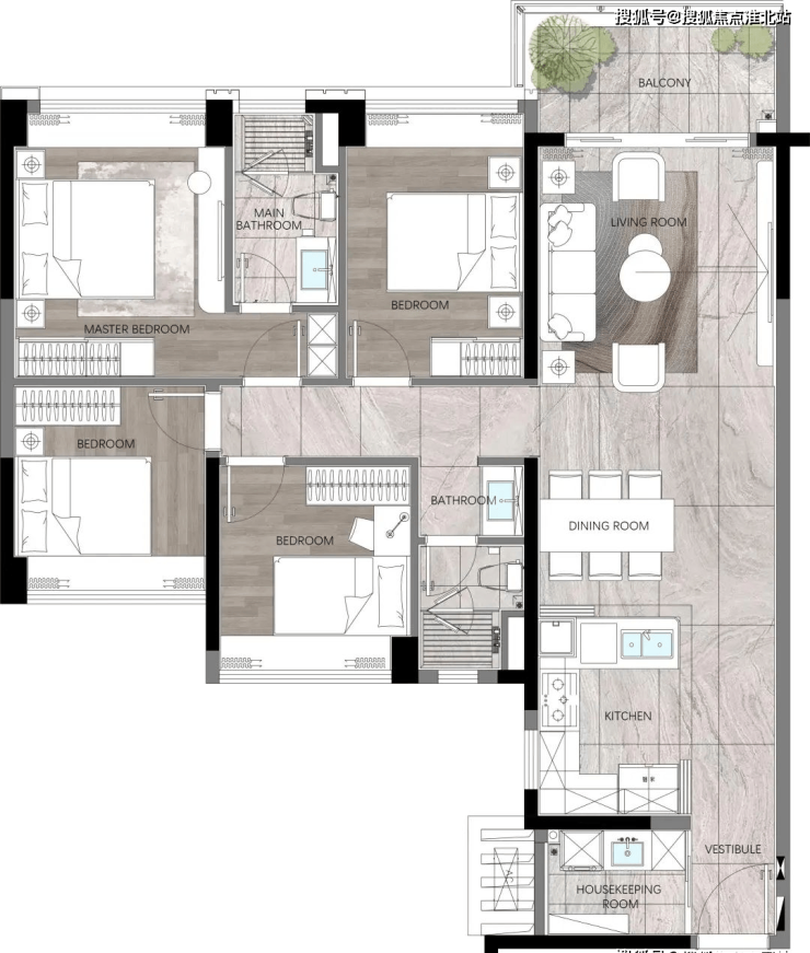
项目基本信息

占地面积:20055㎡

建筑面积:80773.0㎡

容积率:7

绿化率:10%

楼栋总数:5栋,2梯4户和2梯5户

总户数:570户

物业公司:合生物业公司

停车位:1066个

均价:9万

【珠江投资 29年稳健巨匠】

珠江投资,作为地产稳健型代表,29载沉淀,布局全国5大经济圈,缔造特色产业及人居项目超160个,其中90%集中在北上广深,从北京珠江阙、北京珠江天樾书院、上海珠江安康苑...珠江投资拥有超前的战略眼光,再造城市标杆作品!

2025珠江天郦售楼处电话:400-186-1314转1111最新房价/详情

◆◆售楼处电话:400-186-1314 接通后输入1111◆◆

◆◆来电预约登记——〢尊享Vip一对一专业置业顾问讲解◆◆

◆◆基本信息介绍,地址,户型,价格,位置,医疗教育,商业交通配套!◆◆

◆◆免责声明:本文图片皆来源于网络如无意中侵犯了某方的知识产权,告知即删◆◆

声明:本文由入驻焦点开放平台的作者撰写,除焦点官方账号外,观点仅代表作者本人,不代表焦点立场。