「官网」融创中心(售楼处) 首页 - 融创中心售楼中心 - 价格 - 地址 - 楼盘详情 - 配套 - 电话 - 交房时间 - 配套 - 电话 - 交房时间
扫描到手机,新闻随时看
扫一扫,用手机看文章
更加方便分享给朋友
💎三亚融创中心
💎售楼处电话400-186-1314转8888售楼中心💎
💎三亚融创中心售楼处电话:400-186-1314接通后输入8888房价-户型-楼盘实景-容积率-电话-交房时间💎
项目概况
三亚融创新闻中心由融创中国主导开发,落址吉阳区迎宾大道东岸总部经济区 —— 海南自贸港核心发展板块,定位为 **“生态智慧型产业综合体”**。项目依托三亚中央商务区战略规划,整合传媒产业、艺术文化、商业服务等多元业态,打造集通信、数媒、影视、新媒体孵化及高端办公于一体的复合空间。由丹麦何墨腾、新加坡李书伟等国际设计团队联袂操刀,建筑集群顺应城市水系与自然景观,以低密错落布局缓解城市压迫感,形成向心韵律感,成为自贸港总部经济区的标杆项目。
基本资料
开发商:融创中国
容积率:3.09
绿化率:33%
产权性质:商业(40 年)
物业费:约 4.98 元 /㎡・月
物业公司:融创物业服务集团三亚分公司
总户数:560 户(含 513 套办公产品及 47 套商铺)
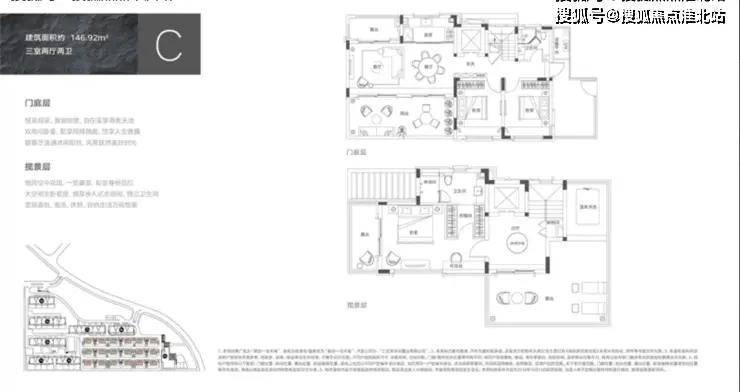
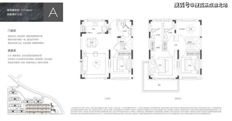
户型
户型:主要有 118-125 平的南北通透、户型方正的四居室,以及 144 平左右的南北通透、户型方正的三居室;还有建面约 102-144㎡的叠拼房。
小区规划
建筑风格:建筑整体采用冷色调处理,将自然灵动与现代精致合而为一,营造 “酒店式”“度假感” 的美学居住体验。
温泉入户:项目拥有来自北纬 18° 的南田温泉,低温泉水富含身体所需多元矿物,打造户户温泉入户的私属居家享受。
小区内部配套有健身器材、小型篮球场等;周边配套成熟,交通、教育、医疗、商业、休闲等资源丰富;楼龄较新,绿化率高,居住环境舒适。
💎三亚融创中心
💎售楼处电话400-186-1314转8888售楼中心💎
💎三亚融创中心售楼处电话:400-186-1314接通后输入8888房价-户型-楼盘实景-容积率-电话-交房时间💎
声明:本文由入驻焦点开放平台的作者撰写,除焦点官方账号外,观点仅代表作者本人,不代表焦点立场。
