中山华鸿·璟悦轩售楼处电话→(TOP.1)招商部楼盘百科-中山华鸿·璟悦轩售楼中心欢迎您-评测
扫描到手机,新闻随时看
扫一扫,用手机看文章
更加方便分享给朋友
中山华鸿·璟悦轩
售楼处电话:400-186-1314转1111
中山华鸿·璟悦轩售楼处电话:400-186-1314接通后输入1111楼盘详情介绍,位置、小区环境、房价、周边商业配套、户型等楼盘详情!
华鸿·璟悦轩】傲居黄金走廊博爱七路上,畅享东区及凯茵片区高端配套,南向万亩湖山高尔夫巨幕景观囊括其中,兼备世界顶奢豪宅标准,全方位诠释中山豪宅新范本。

华鸿璟悦轩傲居中山城区黄金走廊-博爱七路、长江高尔夫球场旁;距离深中通道开发区出入口也只需较短车程,即享珠三角生活圈。华鸿璟悦轩沿山而建,1.99低密度,38%绿化率,环境优美,是中山在售绝版的坐拥南向万亩湖山高尔夫景观的顶豪项目,坐在家中就能看到价值2个亿的高尔夫园林景观。▲高尔夫园林项目由6栋27-30层洋房和38套双拼及联排别墅组成的高尚住宅区,住宅朝向均以南为主,採光通风,超宽楼间距。小区内部环境优美,鸟语花香,而且小区内部还有一条护城河。 【项目基本信息】


物业类别:普通住宅
项目特色:品牌地产豪华居住区水景地产
建筑类别:塔楼/高层
装修状况:毛坯
产权年限:普通住宅:70年
开发商:中山市华鸿房地产开发有限公司,中山市华翔房地产开发有限公司
占地面积:50025平方米
建筑面积:143230平方米
容积率:1.99
绿化率:38%

【项目配套】
教育:英贝尔幼儿园、广东博文学校、纪中三鑫凯茵学校、中山职业技术学院、中山市实验中学、中山职业技术学院雅思楼、中山职业技术学院创新楼
综合商场:远洋广场、火炬太阳城商圈、华润万家,长江村一带商业集聚区
市场:长江综合市场、陵岗市场、菜丁长江市场、大岭市场大楼
医疗:博爱医院、凯茵新城社区卫生站、中山市火炬开发区宫花社区卫生服务站、博凯社区卫生服务站-母婴室
周边景观:五桂山山脉,周边都是天然山景
周边公园:长江乐园、长江健身广场、奥斯湖休闲公园、山顶公园、绿廊公园。
【项目亮点】项目其南面紧贴中山长江高尔夫,可说是中山最后一个容纳高尔夫湖山景观的孤品。其面积达3000亩,36洞、标准杆72杆、全长7066码。
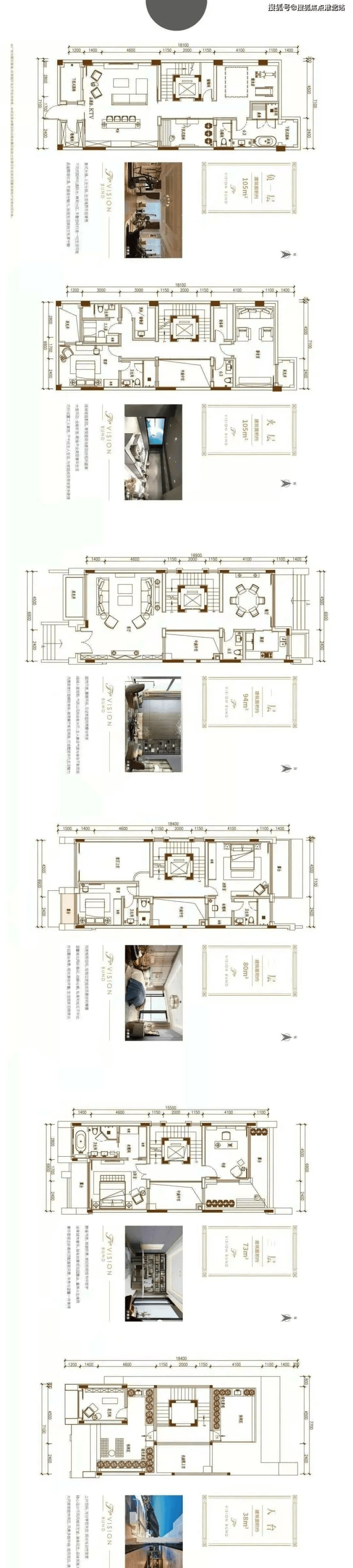
【户型鉴赏】

中山华鸿·璟悦轩
售楼处电话:400-186-1314转1111
中山华鸿·璟悦轩售楼处电话:400-186-1314接通后输入1111楼盘详情介绍,位置、小区环境、房价、周边商业配套、户型等楼盘详情!
免责声明:本文图片皆来源于网络如无意中侵犯了某方的知识产权,告之即删!
声明:本文由入驻焦点开放平台的作者撰写,除焦点官方账号外,观点仅代表作者本人,不代表焦点立场。
