首页【惠州锦荟年华】售楼处电话→【锦荟年华】售楼中心首页网站→【锦荟年华】楼盘百科详情-户型配套
扫描到手机,新闻随时看
扫一扫,用手机看文章
更加方便分享给朋友
惠州锦荟年华
售楼处电话:400-186-1314转1111(中介勿扰)
售楼处电话:400-186-1314接通后输入1111楼盘详情介绍,位置、小区环境、房价、周边商业配套、户型等楼盘详情;预约咨询—提前联系咨询售楼中心置业顾问—进行预约登记来访;预约优惠—售楼中心置业顾问为您买房保驾护航—匠心钜制恭迎品鉴 !
项目卖点:
1.主打金山新城核心区:
金山新城核心区为接下来“南进”的主要拓展空间,形成惠州新副中心,成为立足湾区的惠州中央创新区(CID)和中部公共服务中心。同时对接港深广,塑造为区域专业特色服务中心、惠州市创新成长共享基地、年轻人群欢乐生活的舞台
金山新城 高标打造未来城市中芯
项目雄踞惠州市 “未来城市中芯” 金山新城核芯,是集 “商业、医疗、义务及高等教育、前沿科研”为一体的金山湖科教中芯板块,教育资源尤为优厚。距项目约1.5公里范围内集合了三大高校学府;毗邻高铁惠州南站(即将通车)交通枢纽,生态立城门户,优享大湾区、深圳都市圈发展红利。
生态之城 山水十字中轴生态景观带
紧挨城市公园(规划中),邻近金山湖公园以及山水十字中轴(规划建设约40~300米的十字城市绿地,融合城市水系河慢行系统,塑造惠州中轴等生态景观)。而金山新城核心区(北部片区)北至体育南路,南至广汕高铁惠州南站(即将通车),西至演达大道,东至惠澳大道与惠大高速。
2.惠州南站交通枢纽:
紧临城市主干道演达大道,约800米(直线距离)至惠州南站(广汕高铁)交通枢纽(年底通车),约半小时直抵广州和汕头,邻莞深两大高速路口,三纵四横道路交通网。
位处惠州南站核心圈中心处,距离最近的项目,直线距离仅2公里。
3.可享受金山湖商业配套:
约4公里范围内享山姆会员店、金山湖中心、读者文化公园、印象城(星梦乐园)等繁华商业配套;奥体中心、金山湖体育馆、游泳跳水馆等市政设施近在咫尺;还享大数据产业园区、两装置总部及科教片区等千亿产业规划红利
4.项目本身卖点:
锦荟年华采用铝合金模板+爬架建造体系技术(铝模工艺),用毫米级的误差标准为居者打造未来理想之家。
户户配置创维指纹密码锁,多种智能解锁方式:指纹、临时密码、密码、钥匙、门卡五重解锁,手指按下的那一刻起,归家的仪式感迎面而来;
上海永大高速电梯(2.0米/秒),大承载(1050公斤,14人),保证每栋楼的安全快速上下进出。
户型亮点:
78-116㎡金山新城 潮流美宅
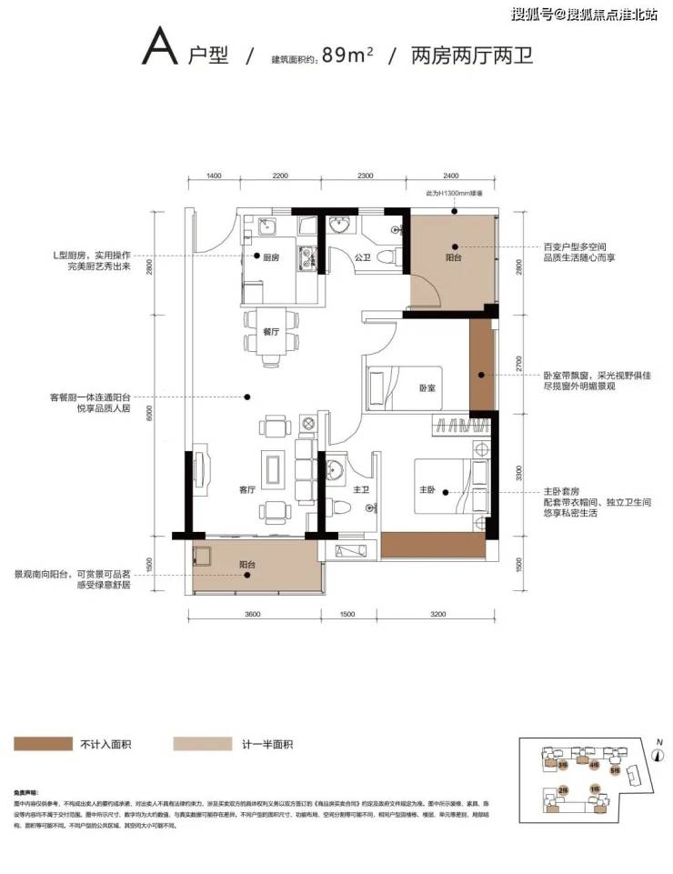
A户型:约89㎡ 百变2+1房2厅2卫
B户型:约81㎡ 实用2+1房2厅2卫
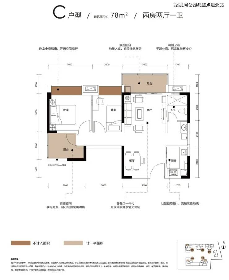
C户型:约78㎡ 稀缺2+1房2厅1卫
D户型:约116㎡ 阔绰3+1房2厅2卫2阳台
惠州锦荟年华
售楼处电话:400-186-1314转1111(中介勿扰)
售楼处电话:400-186-1314接通后输入1111楼盘详情介绍,位置、小区环境、房价、周边商业配套、户型等楼盘详情;预约咨询—提前联系咨询售楼中心置业顾问—进行预约登记来访;预约优惠—售楼中心置业顾问为您买房保驾护航—匠心钜制恭迎品鉴 !
(免责声明:本篇分享非广告,所涉及的图文资料仅供参考,具体以最终签订的买卖合同为准,详情请咨询开发商热线400-186-1314转1111,部分图片素材来自网络,如有侵权请联系小编删除,感谢支持。)
声明:本文由入驻焦点开放平台的作者撰写,除焦点官方账号外,观点仅代表作者本人,不代表焦点立场。
