惠城金中环(售楼处)首页网站-金中环营销中心-金中环欢迎您-楼盘详情-最新价格-户型图-容积率@售楼处中心

楼市八卦 2025-09-13 10:33:37
用手机看
扫描到手机,新闻随时看

扫一扫,用手机看文章
更加方便分享给朋友

2025惠州金中环售楼处电话:400-186-1314转1111最新房价/详情 ◆◆售楼处电话:400-186-1314 接通后输入1111◆◆ ◆◆来电预约登记——〢尊享Vip一对一专业置业顾问讲解◆◆

惠州金中环

售楼处电话:400-186-1314转1111(中介勿扰)

惠州金中环售楼处电话:400-186-1314接通后输入1111楼盘详情介绍,位置、小区环境、房价、周边商业配套、户型等楼盘详情;预约咨询—提前联系咨询售楼中心置业顾问—进行预约登记来访!

惠州繁华地段准现房,预计下月交付,建面约73-136m², 单价9字头起。特价促销抢购中......

这个盘就是金中环,买房送全屋家装大礼包。

【项目基本信息】

占地面积:约1.2万㎡

建筑面积:约10.27万㎡

容积率:5.78

绿化率:35%

住宅户数:185户

停车位:640个

电梯配比:2梯5户

住宅产品:73㎡2房、90-95㎡3房、116㎡3房、136㎡4房

管理费:住宅2.88元/㎡/月

层高:3米

自持商业规模:4层,1.7万㎡

交楼标准:毛坯交付

交楼时间:2025年4月

金中环是集地段、商业价值、生活便利性、交通便利性、资产保值增值性、稀缺性和优质学区于一体的高端楼盘!

金中环位于港惠旁,占据黄金全优配套,片区配套醇熟,拥有天虹、沃尔玛等商业;此外,金中环自持4层大型购物中心已开始招商运营。医疗、银行、便民服务、公园休闲等配套一应俱全。

⚜再造地标 城市新高度

金中环1号楼高145米,代表区域内豪宅新高度,城市新地标,彰显尊贵身份;

⚜交通便利,四通八达

紧邻城市主干道演达大道,北接麦科特大道,南驳三环南路连通惠阳,仅10分钟即可通达全城及惠州南站,尽享便捷交通。

⚜优质学区,教育无忧

中心地段标配优质学区,惠州市第28小学、惠州一中集团下埔校区;二十八小:20年惠州重点公办学校,设置36班,教育师资雄厚,教学设备齐全;一中集团下埔校区:广东省重点中学,引入原老校区优质师资,惠州一中初中部964人参加中考,升学率在98%以上;其中,有221人考入一中高中部,占比23%。

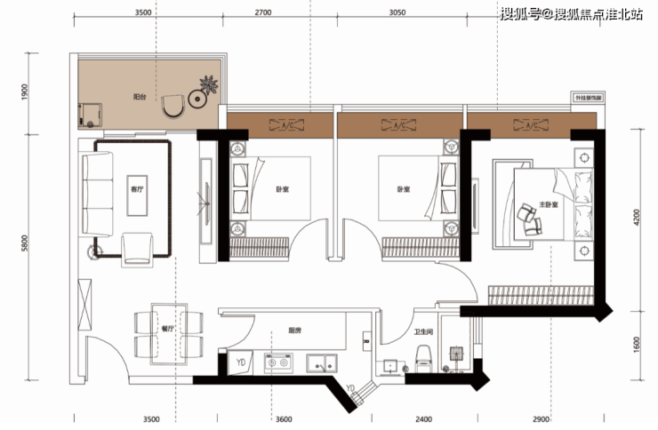
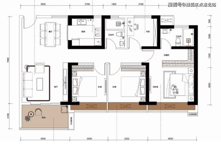
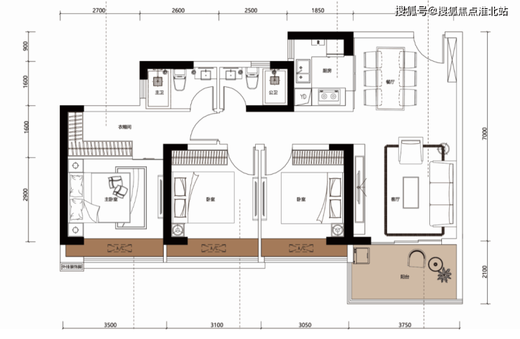
【全明户型,最后50套,特价促销抢购中】

建面约135.55m² 四房两厅两卫

建面约116.40m² 三房两厅两卫

建面约73.02m² 两房两厅一卫

建面约90.40m² 三房两厅一卫

建面约95.45m² 三房两厅一卫

2025惠州金中环售楼处电话:400-186-1314转1111最新房价/详情

◆◆售楼处电话:400-186-1314 接通后输入1111◆◆

◆◆来电预约登记——〢尊享Vip一对一专业置业顾问讲解◆◆

◆◆基本信息介绍,地址,户型,价格,位置,医疗教育,商业交通配套!◆◆

◆◆免责声明:本文图片皆来源于网络如无意中侵犯了某方的知识产权,告知即删◆◆

声明:本文由入驻焦点开放平台的作者撰写,除焦点官方账号外,观点仅代表作者本人,不代表焦点立场。