上海国贸虹桥璟上售楼处电话→上海国贸虹桥璟上百度认证→楼盘详情-房价户型→配套楼盘详情→首页网站→热搜焦点
扫描到手机,新闻随时看
扫一扫,用手机看文章
更加方便分享给朋友
上海国贸虹桥璟上
售楼处电话400-186-1314转6000【售楼中心】
24小时热线◆温馨提示:看房需提前预约
售楼处电话400-186-1314转6000【售楼中心】
〢尊享售楼处🍂销售专业讲解〢
◆在售房源户型价格详询售楼处〢一对一热情服务
开发企业:厦门国贸地产
产品类型:高层住宅
建筑风格:现代
01
核心推荐理由
亮点1:国贸上系上海首席作品
上系,屋脊之上,也代表有所成就。上系产品是对过去奋斗的奖赏,也激励人们人生仍需修行的寓意;国贸地产依托30余载产品缔造经验,于虹桥科创之芯打造上海人居呈现新水准。
亮点2:标杆立面形象
建筑风格遵循“少即是多”的设计理念,现代而又简约,立面强调竖向线条及层间金属线条勾勒建筑体量,顶层外挑金属飘板使得立面体块清晰,具有秩序感的几何立面,使产品历久弥新,彰显居住品质。
亮点3:双水系、三岛屿、海上森屿风情社区
场地被Y形天然水系分割成三座自然岛屿,使得项目拥有了独树一帜的双水系、三岛屿社区;设计结合上海魔都海派、摩登时尚风情以及国贸地产“海洋生活美学”营造了具有度假感、品质感、季节感的海上森屿风情社区。
02
项目概况
01 区位概况
择址虹桥璟上择址虹桥科创之芯——漕河泾赵巷科技绿洲,作为上海十三五规划重点科技园区,这里将成为上海软件开发和新一代信息技术的重要功能区,定位为千亿级产业园区,项目周边聚集了网易、北斗、海克斯康等优质企业。
02 总平布局
场地被Y形天然水系分割成三座自然岛屿,整体布局致力于景观资源丰富。19栋16-17层商品住宅错落布置,围合出尺度适宜、公共或私密的中庭空间;同时与滨水绿化带内外交相呼应。
03
外立面
虹桥璟上的立面通过强调竖向线条及层间金属线条,勾勒建筑体量,顶层外挑金属飘板使得立面体块清晰,具有秩序感的几何立面,使产品历久弥新,彰显居住品质。
04
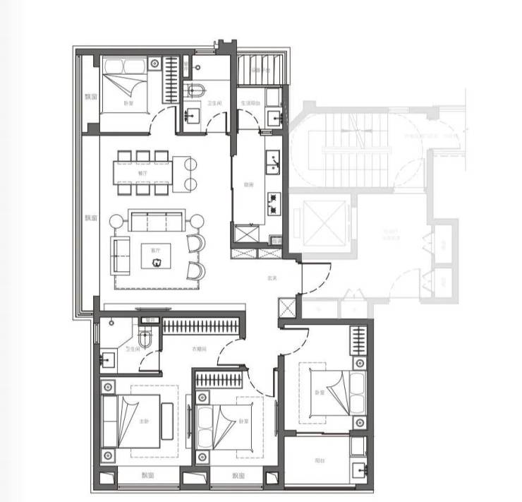
主力户型
户型亮点:
①客餐厅在LDKG的基础上进行复合功能的提升,成为“家庭活动中心”,可承载多种生活场景需要;
②客房全部朝南,其中次卧自带封闭阳台,高窗墙比,将阳光全面引入满足晾晒,休闲等复合功能;
③客厅餐厅和多功能房墙体可打开,形成一个乐享巨厅。
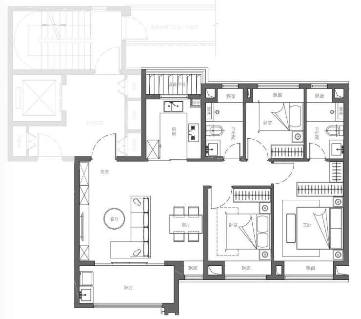
户型亮点:
①“去中心化”是客餐厅设计的重要理念,在面宽约5.5米的大横厅中,通过格局灵活变化和家具的组合形式,为家人相聚打造更亲密的场域;
②高效U型厨房的设计,可同时容纳2-3人同时操作,洗切烹炒装盘,全部一气呵成;
③主卧室采用小家化设计理念,自带步入式衣帽间和卫生间,同时带来了更多收纳空间与生活仪式感。
户型亮点:
①分户“S墙”设计相较于传统户型的直墙,更具创新和实用性;
②餐厨一体化设计,得益于分户“S墙”将冰箱外移的设计,厨房就有了更大空间,成了一个U型布局;
③餐厅充当了一个有效串联不同功能区域的连接点,使家庭成员能够更轻松地在不同区域之间移动。
05
精装设计
01 人性化亮点
厨房大单槽,抽拉龙头,设置末端净水;
厨房燃气灶背后设置不锈钢挡污板,吊顶顶部配置凉霸。
02 收纳亮点
玄关柜与电视背景融合设计,整体性佳;
卫生间台盆柜侧面预留储物功能;
镜柜通长,尽可能给予客户更多的收纳空间,利用镜柜门板设置美妆收纳;
台盆柜底部悬空,方便放置物品,及卫生清理;
U型橱柜布局合理洗切烧便捷三角动线,吊柜底部设置感应灯带,设置调味拉篮;
主卧采用通透式弧形衣柜设计,设置挂衣区,抽屉区,层架区域,裤架区域,满足储物功能的同时,给空间增加通透感。
03 品质化亮点:
地面客餐厅采用仿石砖,卧室采用实木复合地板;
全屋中央空调、新风、地暖;
客餐厅配置智能家居;
台盆柜、镜柜、淋浴房、座便器均采用九牧品牌。系统性更强。
06
社区规划
▲仪式感大门(效果图)
07
景观规划
主题:漫屿九景,一线一园一心一空间
上海国贸虹桥璟上
售楼处电话400-186-1314转6000【售楼中心】
24小时热线◆温馨提示:看房需提前预约
售楼处电话400-186-1314转6000【售楼中心】
〢尊享售楼处🍂销售专业讲解〢
◆在售房源户型价格详询售楼处〢一对一热情服务
声明:本文由入驻焦点开放平台的作者撰写,除焦点官方账号外,观点仅代表作者本人,不代表焦点立场。
