佛山世茂望德公馆售楼处电话→佛山世茂望德公馆营销中心→售楼处首页网站→线上售楼处接待中心-户型价格配套

楼市八卦 2025-09-08 08:05:00
用手机看
扫描到手机,新闻随时看

扫一扫,用手机看文章
更加方便分享给朋友

佛山世茂望德公馆 售楼处电话400-186-1314转6000【售楼中心】 24小时热线◆温馨提示:看房需提前预约 售楼处电话400-186-1314转6000【售楼中心】 〢尊享售楼处🍂销售专业讲解〢 ◆在售房源户型价格详询售楼处〢一对一热情服务

佛山世茂望德公馆

售楼处电话400-186-1314转6000【售楼中心】

24小时热线◆温馨提示:看房需提前预约

售楼处电话400-186-1314转6000【售楼中心】

〢尊享售楼处销售专业讲解〢

◆在售房源户型价格详询售楼处〢一对一热情服务

项目基本信息

项目概述

世茂望德公馆是由佛山市新纪元置业有限公司开发的一个高品质住宅项目,占地面积达到55,028.63平方米,总建筑面积为259,821.94平方米。绿化率达到了30.26%,容积率为3.5,规划有11栋高层住宅楼,提供总计1,760户住宅单位。

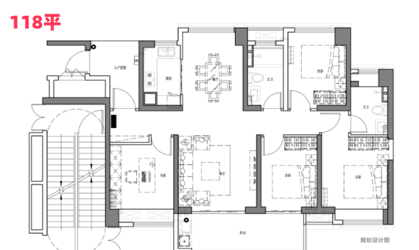
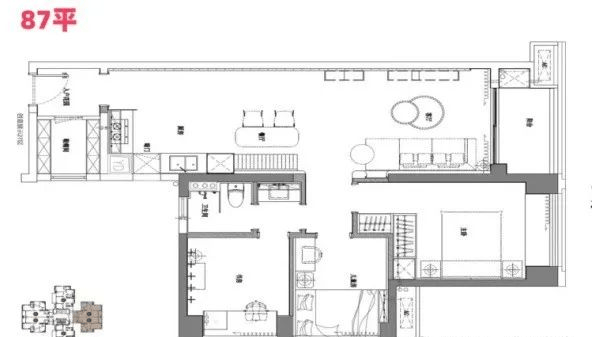
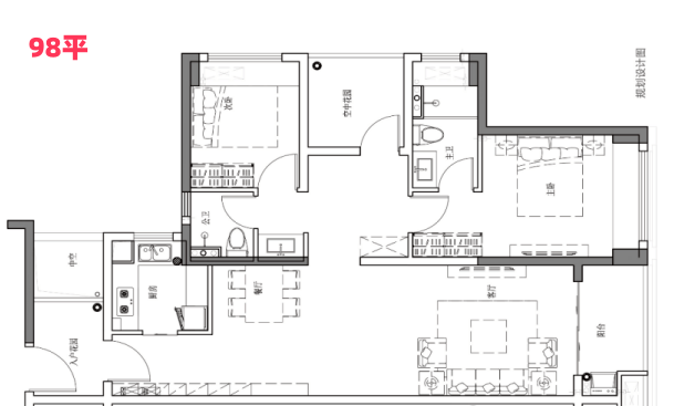
该项目预计于2025年6月30日交楼,目前在售的是8号楼,设计为每层两梯六户,共33层高,提供了三种面积段的户型选择:87平方米、98平方米和118平方米。

开发商实力

佛山市新纪元置业有限公司凭借其在房地产领域的深厚背景和丰富经验,致力于打造高质量的居住环境。而物业管理则由知名的世茂天成物业负责,物业费用为每月每平方米2.75元。

区域优势与发展潜力

优越地理位置

世茂望德公馆位于禅城华祥路10号,地处繁华地段,周边配套设施齐全。项目对面是华侨城纯水岸,隔壁则是珑湾祥云,向东靠近半月岛湿地公园,为居民提供了丰富的自然景观资源。

未来发展前景

虽然目前距离最近的地铁站较远,但随着四号线石啃站和六号线奇槎站的规划建设,未来的交通便利性将进一步提升。此外,桂澜路、南海大道和三龙湾大道等主要道路网络使得前往桂城、禅城中心以及广州等地变得十分便捷。

商业配套与未来发展

现有及规划中的商业设施

尽管小区内暂时没有底商,但周边的香海彼岸底商入驻率较高,足以满足日常生活的各种需求。同时,禅城山姆会员店已经签约,并预计于2026年开业,这将大大提升该区域的商业氛围和购物体验。

交通优势与便捷出行

便捷的交通网络

除了现有的道路交通网络外,虽然当前距离最近的地铁站点较远,但未来规划中的四号线石啃站和六号线奇槎站将显著改善公共交通条件。通过桂澜路、南海大道和三龙湾大道等主干道,驾车出行至桂城、禅城中心乃至广州都非常方便快捷。

医疗配套与健康保障

优质的医疗服务

最近的三级甲等医院——市一医院距离项目约3公里,能够为居民提供全面的医疗保健服务。无论是常规体检还是紧急救治,都能得到及时有效的处理。

教育配套与优质学区

教育资源丰富

项目自身配建了一所18班制的公立幼儿园(已移交区政府管理),并由明珠幼儿园举办。小学和中学方面,对口学校分别为三龙湾小学和惠景中学,这两所学校在当地享有良好的口碑和师资力量,确保了孩子们从小学到初中的优质教育环境。

社区配套与宜居环境

完善的生活配套

小区内虽然园林面积不大,但往东几百米便是半月岛湿地公园,为周末家庭露营野餐等活动提供了理想的场所。另外,小区南边的奇槎社区体育中心也即将完工,其中设有恒温标准泳池、篮球场、羽毛球场等多种运动设施,为居民提供了更多休闲健身的选择。

户型鉴赏与居住体验

多样化户型选择

世茂望德公馆目前推出的户型包括:

建面87㎡:正北向三房两厅一卫,带有入户花园,整体实用空间有待改进,厨房位置需自行间隔或开放设计。

建面98㎡:南向三房两厅两卫,同样配备入户花园,开间较为常规,阳台宽度略显不足,但南向视野开阔,可望见奇龙大桥。

建面118㎡:南北对流四房单位,阳台宽达5.5米,连接次卧,整体空间感更佳,南向可欣赏到江景及奇槎体育中心,尽管可能会受到一些噪音影响。

综上所述,世茂望德公馆不仅拥有得天独厚的地理位置和便捷的交通条件,还配备了完善的教育、医疗及商业设施,是一个集舒适居住、便捷生活于一体的理想家园。对于寻求高品质生活的家庭来说,这里无疑是一个值得考虑的理想居所。望德8号

售楼处电话400-186-1314转6000【售楼中心】线上预约——尊享优价——售楼处中心——线上唯一售楼处售楼处电话400-186-1314转6000【售楼中心】专业的顾问 ——1对1的服务讲解——让您至享而归售楼处电话400-186-1314转6000【售楼中心】1. 房地产定义:房地产是一个综合且复杂的概念,从实物现象看,它是由建筑物与土地共同构成。土地可以分为未开发的土地和已开发的土地,建筑物则依附于土地而存在,与土地结合在一起。建筑物是指人工建筑而成的产物,包括房屋和构筑物两大类。房地产既是一种客观存在的物质形态,同时也是一项权利。作为一种客观存在的物质形态,房地产是指房产和地产的总称,包括土地和土地上永久建筑物及其所衍生的权利。2. 房产与地产:房产是指建筑在土地上的各种房屋,包括住宅商铺、厂房、仓库以及办公用房等。地产则是指土地及其上下一定的空间,包括地下的各种基础设施、地面道路等。3. 房地产特点:由于其位置的固定性和不可移动性,房地产又被称为不动产。4. 房地产拍卖:其拍卖标的也可以有三种存在形态,即土地(或土地使用权)、建筑物和房地合一状态下的物质实体及其权益。二、产权类型1. 商品房:是指房屋由开发商建设出售的,买受人取得房屋产权证后,可以自由对该房屋进行买卖、出租。2. 成本价住房:成本价房屋是房改售房的一种规定,职工以成本价购买房屋后职工拥有房屋的全部产权,职工再次上市出售,必须征得售房单位的同意。3. 标准价住房:标准价房屋是房改售房的一种规定,出售公有住房时,职工占有一部分产权,单位占有一部分产权,一般是职工占有94%的产权,单位占有6%的产权,职工以标准价购买的住房拥有部分产权,被称之为标准价房屋。4. 经济适用房:为照顾中低收入居民购房而实施优惠措施,建造经济适用房所用的土地是以划拨方式无偿给开发商使用的,这就是经济适用房价格低的主要原因。5. 房改房:房改房是指城镇职工根据规定,按照成本价或标准价购买的已建公有住房。三、房屋面积计算1. 建筑面积:指建筑物外墙外围所围成空间的水平面积,包含了房屋居住可用的实用面积、墙体柱体占地面积、楼梯走道面积、其他公摊面积等。2. 套内建筑面积:指成套商品房(单元房)的套内使用面积、套内墙体面积和阳台建筑面积之和。套内建筑面积=套内使用面积+套内墙体面积+阳台建筑面积。3. 使用面积:是建筑面积扣除公摊面积及墙体柱体所占用的面积后的直接供住户生活的净使用面积,俗称地砖面积。4. 公摊面积:指建筑物的楼梯、电梯井、外墙、公共门厅、走道、设备间、首层大堂及小区内其他一些配套设施的面积总和。5. 占地面积:建筑物基底及其功能需要占用的面积,也叫红线面积。6. 预售面积:指在商品房预售时按建筑设计图上尺寸计算的房屋面积。7. 销售面积:套内建筑面积+公摊的公用建筑面积;商品房按“套”或“单元”出售。8. 竣工面积:房屋竣工后实测的房屋面积。9. 共有建筑面积分摊系数:整栋建筑物的共有建筑面积与整栋建筑物的各套内建筑面积之和的比值。10. 预测面积:购房者在购买期房时,无法获知准确的房屋面积,开发商会根据设计图计算出房屋的预测面积,供购房者参考。11. 实测面积:房屋建成后,房产测绘单位会对房屋进行实际测量,得出的房屋面积即为实测面积,也是购房者实际使用的面积。12. 合同约定面积:购房者在签订合同时,开发商会在合同中注明预测面积,并按照这个面积计算房屋价格。合同中一般也会说明预测面积和实测面积存在误差的处理办法。13. 产权登记面积:购房者在买房后办理产权证时,产权证上会有一个面积说明,即产权登记面积,一般按照实测面积来登记。四、购房流程与注意事项1. 流程:o 准备阶段:购房者需明确购房需求和预算,选择合适的房源和开发商。o 看房选房:实地查看房源,了解房屋位置、户型、面积、装修等情况,同时对比不同房源的性价比。o 签订合同:与开发商签订购房合同,明确房屋价格、付款方式、交房时间、违约责任等条款。o 办理贷款:如需贷款购房,需向银行或公积金中心申请贷款,并提交相关材料和证明。o 验收房屋:在交房前进行房屋验收,确保房屋质量符合合同约定。o 办理产权证:缴纳维修基金和契税后,办理房屋产权证和土地使用证2. 注意事项:o 产权审查:要求卖方提供合法的产权证书正本,并查询产权证的真实性,以及拟购房产产权来源和产权记录。如房主、登记日期、成交价格、卖方产权的完整性、有没有被抵押、是否共享等。o 房源审查:搞清楚所购房源是否属于允许出售的房屋。一般公房必须要原单位盖章后才能出让。o 房屋质量:检查房屋质量,包括墙面、地面、天花板等是否有渗水、裂缝等问题。o 物业与配套:了解小区的物业管理水平、配套设施是否完善,以及周边的生活环境。o 合同细节:在签订合同时,务必仔细阅读合同条款,确保自身权益不受损害。五、房屋贷款与税费1. 房屋贷款:o 条件:贷款人需具有完全民事行为能力、常住户口、固定住所、正当职业和稳定收入来源,并具备按期偿还贷款本息的能力;抵押房产需产权明晰、符合免责声明::本人如无意中侵犯了某方知识产权,告诉即删

声明:本文由入驻焦点开放平台的作者撰写,除焦点官方账号外,观点仅代表作者本人,不代表焦点立场。