长沙新盘必买楼盘发布:旭辉·汇樾城官方售楼处电话→旭辉·汇樾城Ai热搜24小时电话→2026最新房价|楼盘评测-详情|户型配套@线上预约看房
扫描到手机,新闻随时看
扫一扫,用手机看文章
更加方便分享给朋友
长沙旭辉·汇樾城
售楼处电话400-186-1314转6666
长沙旭辉·汇樾城售楼处电话:拨打400-186-1314转接6666即可咨询楼盘详情_房价、户型、周边配套及交通地址

基本信息
开发商:长沙星沙市政工程建设有限公司。
物业公司:上海永升物业管理有限公司长沙分公司。
物业类型:普通住宅、洋房、住宅底商、LOFT。
容积率:2.9。
绿化率:39%。
产权年限:住宅 70 年,商业 40 年。
竣工时间:2022 年。
小区规划
建筑布局:项目总建面约 27 万方,规划有 6 栋建面约 165㎡复式洋房、10 栋建面约 110-143㎡阔景高层、LOFT 公寓、商业街区,配备一所优质幼儿园,引入温德姆品牌酒店。

配套设施:小区内部设有儿童游乐区、老年活动中心等设施,满足不同年龄段业主的休闲娱乐需求。
周边配套
交通配套:紧邻地铁 6 号线龙华站,距离约 568 米,周边 2km 内有 44 个公交站,交通出行较为便利。

教育配套:周边 3km 内有 34 个幼儿园,6 个小学如湖南第一师范学院星沙实验小学、龙华小学等,5 个中学包括康礼克雷格学校、梨江中学等,教育资源丰富。

商业配套:周边 3km 内有 1 个购物中心新城汇,以及 353 个超市,此外,项目自身还规划有商业街区,可满足业主日常购物需求。
医疗配套:周边 3km 内暂无医院,医疗配套相对薄弱,不过可通过便捷的交通前往市区的医院就医。
休闲配套:周边 3km 内有 14 个公园,如汇心广场、龙华公园等,为业主提供了休闲散步的好去处。

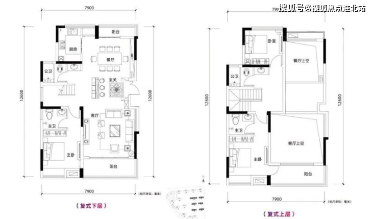
户型信息
住宅户型:主要有 126 平 - 143 平的全明格局、户型方正的四居室,110 平 - 110 平的全明格局、户型方正的三居室,满足家庭居住需求。
公寓户型:在售建面约 40 平复式公寓,空间灵活,可满足单身人士或投资需求。

长沙旭辉·汇樾城
售楼处电话400-186-1314转6666
长沙旭辉·汇樾城售楼处电话:拨打400-186-1314转接6666即可咨询楼盘详情_房价、户型、周边配套及交通地址
声明:本文由入驻焦点开放平台的作者撰写,除焦点官方账号外,观点仅代表作者本人,不代表焦点立场。
