湖北武汉【中建福地星城】开发商营销中心售楼处电话、楼盘详情、物业地址、在售户型、房价
扫描到手机,新闻随时看
扫一扫,用手机看文章
更加方便分享给朋友
武汉中建福地星城
售楼处电话:400-186-1314转9999
武汉中建福地星城售楼处电话:400-186-1314接通后输入9999楼盘详情介绍,位置、小区环境、房价、周边商业配套、户型等楼盘详情!

开发商:中建三局房地产开发有限公司。
物业类型:普通住宅、住宅底商、标准写字楼。
总建筑面积:约 60 万方。
容积率:4.25 左右。
绿化率:35%。
总户数:约 4000 户。
车位配比:1:0.2。
物业公司:武汉中建物业管理有限公司。
物业费:2.60-3.50 元 / 平 / 月。
产权年限:70 年。

周边配套网易手机网
交通配套:位于雄楚大道与珞狮南路交汇处,自驾可通过二环快速路等通达武汉三镇。项目距地铁 8 号线和 11 号线马房山站约 300 多米,周边还有 BRT 图书城站及二十余条公交线路,交通十分便捷。
商业配套:对面有泛悦汇奥特莱斯,附近有中商平价等,2 公里范围内有群光广场、银泰创意城、武商梦时代等多个大型商业体,可满足购物、娱乐、餐饮等需求。

教育配套:自带约 3600 平的幼儿园,对口洪山区第一小学书城路分校和洪山高中初中部,周边还有武汉理工大学、华中师范大学等高校,教育资源丰富。
医疗配套:自带中建三局中心医院(将升级为甲级医院),3 公里范围内还有陆军总医院、省妇幼保健院、武汉大学口腔医院等优质医疗资源,为居民健康保驾护航。
生态配套:周边 3km 范围内有 68 个公园,距离最近的仅 475m,附近还有南湖花溪湿地公园,是休闲散步的好去处。

楼盘户型网易手机网
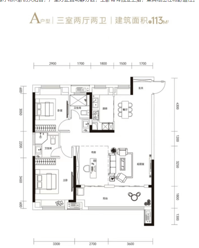
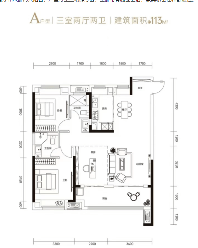
面积段:主推建面约 78-129㎡毛坯高层,有两房至四房多种户型,可满足刚需和改善型需求。
户型设计:户型方正,南北通透,动静分区。如建面约 78㎡户型,两开间朝南,约 270° 南向阳台;建面约 113㎡户型,三开间朝南,约 6.3 米南向双联阳台,通风采光佳,且全屋多飘窗设计,得房率高。
武汉中建福地星城售楼处电话400-186-1314转9999
线上预约——尊享优价——售楼处中心——线上唯一售楼处
专业的顾问 ——1对1的服务讲解——让您至享而归
免责声明:本人如无意中侵犯了某方知识产权,告知即删!
声明:本文由入驻焦点开放平台的作者撰写,除焦点官方账号外,观点仅代表作者本人,不代表焦点立场。
