2025【上海联仲都悦汇】售楼处电话|已认证|户型|价格|地址|售楼处中心
扫描到手机,新闻随时看
扫一扫,用手机看文章
更加方便分享给朋友
上海联仲都悦汇
售楼处电话:400-186-1314转9999
上海联仲都悦汇售楼处电话:400-186-1314接通后输入9999楼盘详情介绍,位置、小区环境、房价、周边商业配套、户型等楼盘详情!

开发商:上海联仲置业有限公司
物业:上海仲量联行物业管理公司
容积率:1.0
绿化率:35%
车位比:1:2.1
物业类型:商业联排别墅
交付标准:毛坯

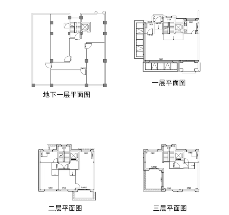
建筑设计:项目为法式干挂建筑风格,地上三层,地下一层,建筑外立面采用高品质石材,展现出优雅、大气的建筑风格
小区布局:贯穿了 3 条自然水系,分为 ABCD 四个地块,其中 ABC 为商住办综合地块,自带商业办公。小区整体规划合理,楼间距宽敞,保证了每户的采光和隐私

面积:建面约 310-411㎡,每户都带有南北双花园,面积在 90-300㎡之间。
层高:一层层高 3.6 米,二层层高 3.4 米,三层层高 3.4 米,地下层高 5.4 米,地下室空间开阔,可根据业主需求进行个性化设计。
面宽:约 10.4 米大面宽,客厅设有 7 米落地窗,采光明亮,尽显大气。

交通配套:距离嘉闵高架元江路出口 3 公里,毗邻 G15、S32 等快速主动脉,30 分钟可达大虹桥,50 分钟可抵达浦东机场。附近还有地铁 5 号线华宁路站、剑川路站,以及马莘专线、闵行 19 路等公交线路
商业配套:项目自带 10 万方商业,为旗忠唯一的综合性商业配套,此外,周边 3km 范围内还有万达广场(上海马桥店)、龙湖上海闵行星悦荟、满天星生活广场(马桥店)等购物中心
教育配套:周边有复旦万科实验学校、德威英国国际学校、斯代文森国际高中、上海美高学校等国际学校,以及元祥幼儿园、富杰幼儿园、启英幼儿园等幼儿园,还有上海交通大学、华东师范大学等高校
生态资源:周边有马桥森林公园、旗忠高尔夫球场、旗忠网球中心、韩湘水博园、养云安缦酒店等,自然环境优美,休闲娱乐设施丰富
上海联仲都悦汇售楼处电话400-186-1314转9999
线上预约——尊享优价——售楼处中心——线上唯一售楼处
专业的顾问 ——1对1的服务讲解——让您至享而归
免责声明:本人如无意中侵犯了某方知识产权,告知即删!
声明:本文由入驻焦点开放平台的作者撰写,除焦点官方账号外,观点仅代表作者本人,不代表焦点立场。
