2025No.丨东莞莞太印象售楼处电话→东莞莞太印象售楼中心首页网站→楼盘百科详情→24小时热线电话

楼市八卦 2025-08-31 14:25:07
用手机看
扫描到手机,新闻随时看

扫一扫,用手机看文章
更加方便分享给朋友

东莞莞太印象 售楼处电话400-186-1314转6000【售楼中心】 24小时热线◆温馨提示:看房需提前预约 售楼处电话400-186-1314转6000【售楼中心】 〢尊享售楼处🍂销售专业讲解〢 ◆在售房源户型价格详询售楼处〢一对一热情服务

东莞莞太印象

售楼处电话400-186-1314转6000【售楼中心】

24小时热线◆温馨提示:看房需提前预约

售楼处电话400-186-1314转6000【售楼中心】

〢尊享售楼处🍂销售专业讲解〢

◆在售房源户型价格详询售楼处〢一对一热情服务

南城【莞太印象】,位于东莞中学南城学校旁,约800米万象府,约1公里中心公园。周边交通网络发达,东莞大道、环城路、环莞快速等多条主干道环绕,为出行提供了极大的便利。同时,项目还邻近东莞R1线(建设中)和东莞R2线,可轻松抵达西平站,实现与莞惠城轨的无缝换乘。

项目规划95-125平装修3-4房,品牌装修标准,以高性价比打造城区高品质洋房。

【项目基础数据】

总建筑面积:约5.7万㎡

绿化率:26.29%

容积率:3.45

规划楼栋:3栋住宅,1栋商办楼

总户数:426

梯户比:住宅2梯4户,商办2梯13户

车位数量:390

装修标准:住宅精装交付、商办毛坯交付

交楼时间:预计2024年10月(具体以合同约定为准)

每一座世界级城市的形成都伴随城市新中心的崛起,居者对生活需求的不断升级,驱动城市精华资源的高度聚合 ,“CLD”—中央居住区就此孕育而生,并成为精英人士“第一所”的优选。

按照政府规划,城区被定位东莞发展主核心,而东莞未来30年发展的就看国际商务区,承担东莞门户、城市客厅、创新枢纽、区域引擎角色,未来将吸引超20万人口;

目前中心公园、商务区北部配套等相关配套已陆续建设完成,投入使用,未来还有万象城商业配套,项目1公里直达,享受繁华配套的同时,承接商务区人口外溢及发展红利,区域发展前景看得见!

项目位于南城核心地段,1公里中心公园,周边市政、商业、休闲娱乐、学校及医疗等配套资源丰富,5-10分钟之内汇集13商超,20多个市政、休闲公园配套,以及莞太路、环城路、京港澳高速、地铁1、2号线等多维交通,满足丰富的中心城区生活圈。

居于繁华之上,无疑是多数城市精英追求的生活方式。项目毗邻东莞三大中心(国际商务中心、南城总部基地、行政文化中心);

◎超千亿核芯商业聚集(万象城(建设中)、国贸、汇一城、蜂汇广场等);

◎超便捷休闲配套荟萃(CBD中心公园(建设中)、旗峰公园、水濂山森林公园、东莞市政府、市科学技术博物馆等);

◎超实力医疗配套护航(康华医院、南城医院、东莞市妇幼保健院等);

多元生活配套环绕,轻松拥揽集市政、商务、休闲、娱乐等一站式生活体验,繁华生活,在此赋新。

教育:东莞中学南城学校旁,400米阳光三小,享东莞品牌学校资源

项目教育资源丰富,东莞中学南城学校于2016年由东莞中学托管,教育水平逐年提高,与项目一路之隔,出门即达;

阳光三小作为百年名校,属于东莞知名品牌学校,距离项目约400米,按照2023年学区划分,新基片区均属于阳光三小学区(商务区北部学校即为阳光三小分校,豪宅项目拼命想读的学校也是三小的分校);

智能化:紧跟时代潮流,采用科技化智能设计,赋能更便捷社区生活

联合超级智慧家,打造智能社区新标杆;赋予与体温37°相等的人性化智能家居系统;

在家即可实现无网络全屋智能操控;可通过手机APP随心实现缴费,来访信息登记,报修,智能家具控制等用科技赋能高品质生活;

交付:一线品牌臻装交付,打造南城刚需超豪交付标准

公区采用日立空调电梯,项目洋房交付配置室内大金中央空调,遴选九牧、TOTO、方太、东鹏等一线知名品牌精装,媲美豪宅交付标准,住宅采用4000元/㎡的臻装标准,刚需中的豪宅品质交付!

产品:南北通透全明产品,超高使用率,错过再无南城一手好户型

项目规划95-125平高使用洋房产品,采用户户朝南设计,南北通透,通风采光俱佳,城区刚需产品的王炸产品,买到就是赚到!

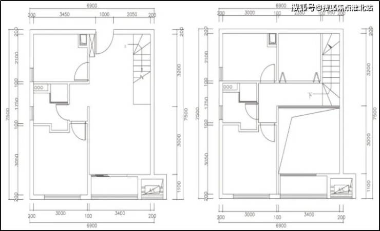
建面约95㎡三房两厅两卫

科学布局,动静分离互不干扰;餐客厅相连,空间明朗通透,无遮挡采光,阳光丰盈,全方位演绎精致生活

建面约125㎡四房两厅两卫

打造景观双阳台,南北通透,阳光清风不请自来。大尺度开间设计,空间开阔,给生活更多从容和可能

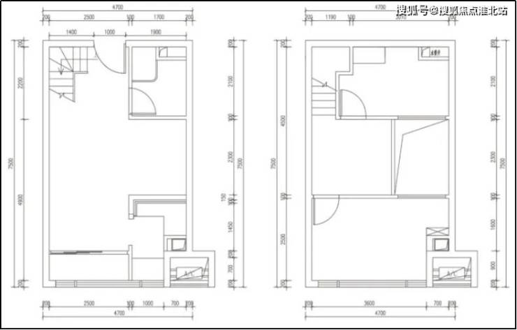
建面约43-65㎡双层创享空间

约4.5m层高,买一层享两层,精奢配置,尽显CBD华贵

东莞莞太印象

售楼处电话400-186-1314转6000【售楼中心】

线上预约——尊享优价——售楼处中心——线上唯一售楼处

售楼处电话400-186-1314转6000【售楼中心】

专业的顾问 ——1对1的服务讲解——让您至享而归

售楼处电话400-186-1314转6000【售楼中心】

1. 房地产定义:房地产是一个综合且复杂的概念,从实物现象看,它是由建筑物与土地共同构成。土地可以分为未开发的土地和已开发的土地,建筑物则依附于土地而存在,与土地结合在一起。建筑物是指人工建筑而成的产物,包括房屋和构筑物两大类。房地产既是一种客观存在的物质形态,同时也是一项权利。作为一种客观存在的物质形态,房地产是指房产和地产的总称,包括土地和土地上永久建筑物及其所衍生的权利。

2. 房产与地产:房产是指建筑在土地上的各种房屋,包括住宅商铺、厂房、仓库以及办公用房等。地产则是指土地及其上下一定的空间,包括地下的各种基础设施、地面道路等。

3. 房地产特点:由于其位置的固定性和不可移动性,房地产又被称为不动产。

4. 房地产拍卖:其拍卖标的也可以有三种存在形态,即土地(或土地使用权)、建筑物和房地合一状态下的物质实体及其权益。

二、产权类型

1. 商品房:是指房屋由开发商建设出售的,买受人取得房屋产权证后,可以自由对该房屋进行买卖、出租。

2. 成本价住房:成本价房屋是房改售房的一种规定,职工以成本价购买房屋后职工拥有房屋的全部产权,职工再次上市出售,必须征得售房单位的同意。

3. 标准价住房:标准价房屋是房改售房的一种规定,出售公有住房时,职工占有一部分产权,单位占有一部分产权,一般是职工占有94%的产权,单位占有6%的产权,职工以标准价购买的住房拥有部分产权,被称之为标准价房屋。

4. 经济适用房:为照顾中低收入居民购房而实施优惠措施,建造经济适用房所用的土地是以划拨方式无偿给开发商使用的,这就是经济适用房价格低的主要原因。

5. 房改房:房改房是指城镇职工根据规定,按照成本价或标准价购买的已建公有住房。

三、房屋面积计算

1. 建筑面积:指建筑物外墙外围所围成空间的水平面积,包含了房屋居住可用的实用面积、墙体柱体占地面积、楼梯走道面积、其他公摊面积等。

2. 套内建筑面积:指成套商品房(单元房)的套内使用面积、套内墙体面积和阳台建筑面积之和。套内建筑面积=套内使用面积+套内墙体面积+阳台建筑面积。

3. 使用面积:是建筑面积扣除公摊面积及墙体柱体所占用的面积后的直接供住户生活的净使用面积,俗称地砖面积。

4. 公摊面积:指建筑物的楼梯、电梯井、外墙、公共门厅、走道、设备间、首层大堂及小区内其他一些配套设施的面积总和。

5. 占地面积:建筑物基底及其功能需要占用的面积,也叫红线面积。

6. 预售面积:指在商品房预售时按建筑设计图上尺寸计算的房屋面积。

7. 销售面积:套内建筑面积+公摊的公用建筑面积;商品房按“套”或“单元”出售。

8. 竣工面积:房屋竣工后实测的房屋面积。

9. 共有建筑面积分摊系数:整栋建筑物的共有建筑面积与整栋建筑物的各套内建筑面积之和的比值。

10. 预测面积:购房者在购买期房时,无法获知准确的房屋面积,开发商会根据设计图计算出房屋的预测面积,供购房者参考。

11. 实测面积:房屋建成后,房产测绘单位会对房屋进行实际测量,得出的房屋面积即为实测面积,也是购房者实际使用的面积。

12. 合同约定面积:购房者在签订合同时,开发商会在合同中注明预测面积,并按照这个面积计算房屋价格。合同中一般也会说明预测面积和实测面积存在误差的处理办法。

13. 产权登记面积:购房者在买房后办理产权证时,产权证上会有一个面积说明,即产权登记面积,一般按照实测面积来登记。

四、购房流程与注意事项

1. 流程:

o 准备阶段:购房者需明确购房需求和预算,选择合适的房源和开发商。

o 看房选房:实地查看房源,了解房屋位置、户型、面积、装修等情况,同时对比不同房源的性价比。

o 签订合同:与开发商签订购房合同,明确房屋价格、付款方式、交房时间、违约责任等条款。

o 办理贷款:如需贷款购房,需向银行或公积金中心申请贷款,并提交相关材料和证明。

o 验收房屋:在交房前进行房屋验收,确保房屋质量符合合同约定。

o 办理产权证:缴纳维修基金和契税后,办理房屋产权证和土地使用证

2. 注意事项:

o 产权审查:要求卖方提供合法的产权证书正本,并查询产权证的真实性,以及拟购房产产权来源和产权记录。如房主、登记日期、成交价格、卖方产权的完整性、有没有被抵押、是否共享等。

o 房源审查:搞清楚所购房源是否属于允许出售的房屋。一般公房必须要原单位盖章后才能出让。

o 房屋质量:检查房屋质量,包括墙面、地面、天花板等是否有渗水、裂缝等问题。

o 物业与配套:了解小区的物业管理水平、配套设施是否完善,以及周边的生活环境。

o 合同细节:在签订合同时,务必仔细阅读合同条款,确保自身权益不受损害。

五、房屋贷款与税费

1. 房屋贷款:

o 条件:贷款人需具有完全民事行为能力、常住户口、固定住所、正当职业和稳定收入来源,并具备按期偿还贷款本息的能力;抵押房产需产权明晰、符合

免责声明::本人如无意中侵犯了某方知识产权,告诉即删

声明:本文由入驻焦点开放平台的作者撰写,除焦点官方账号外,观点仅代表作者本人,不代表焦点立场。