首推₯东莞莞太印象售楼处电话→东莞莞太印象京楼聚焦→楼盘百科引领购房热潮₯奢华生活新标杆
扫描到手机,新闻随时看
扫一扫,用手机看文章
更加方便分享给朋友
东莞莞太印象
售楼处电话400-186-1314转6000【售楼中心】
24小时热线◆温馨提示:看房需提前预约
售楼处电话400-186-1314转6000【售楼中心】
〢尊享售楼处🍂销售专业讲解〢
◆在售房源户型价格详询售楼处〢一对一热情服务
南城【莞太印象】,位于东莞中学南城学校旁,约800米万象府,约1公里中心公园。周边交通网络发达,东莞大道、环城路、环莞快速等多条主干道环绕,为出行提供了极大的便利。同时,项目还邻近东莞R1线(建设中)和东莞R2线,可轻松抵达西平站,实现与莞惠城轨的无缝换乘。
项目规划95-125平装修3-4房,品牌装修标准,以高性价比打造城区高品质洋房。
【项目基础数据】
总建筑面积:约5.7万㎡
绿化率:26.29%
容积率:3.45
规划楼栋:3栋住宅,1栋商办楼
总户数:426
梯户比:住宅2梯4户,商办2梯13户
车位数量:390
装修标准:住宅精装交付、商办毛坯交付
交楼时间:预计2024年10月(具体以合同约定为准)
每一座世界级城市的形成都伴随城市新中心的崛起,居者对生活需求的不断升级,驱动城市精华资源的高度聚合 ,“CLD”—中央居住区就此孕育而生,并成为精英人士“第一所”的优选。
按照政府规划,城区被定位东莞发展主核心,而东莞未来30年发展的就看国际商务区,承担东莞门户、城市客厅、创新枢纽、区域引擎角色,未来将吸引超20万人口;
目前中心公园、商务区北部配套等相关配套已陆续建设完成,投入使用,未来还有万象城商业配套,项目1公里直达,享受繁华配套的同时,承接商务区人口外溢及发展红利,区域发展前景看得见!
项目位于南城核心地段,1公里中心公园,周边市政、商业、休闲娱乐、学校及医疗等配套资源丰富,5-10分钟之内汇集13商超,20多个市政、休闲公园配套,以及莞太路、环城路、京港澳高速、地铁1、2号线等多维交通,满足丰富的中心城区生活圈。
居于繁华之上,无疑是多数城市精英追求的生活方式。项目毗邻东莞三大中心(国际商务中心、南城总部基地、行政文化中心);
◎超千亿核芯商业聚集(万象城(建设中)、国贸、汇一城、蜂汇广场等);
◎超便捷休闲配套荟萃(CBD中心公园(建设中)、旗峰公园、水濂山森林公园、东莞市政府、市科学技术博物馆等);
◎超实力医疗配套护航(康华医院、南城医院、东莞市妇幼保健院等);
多元生活配套环绕,轻松拥揽集市政、商务、休闲、娱乐等一站式生活体验,繁华生活,在此赋新。
教育:东莞中学南城学校旁,400米阳光三小,享东莞品牌学校资源
项目教育资源丰富,东莞中学南城学校于2016年由东莞中学托管,教育水平逐年提高,与项目一路之隔,出门即达;
阳光三小作为百年名校,属于东莞知名品牌学校,距离项目约400米,按照2023年学区划分,新基片区均属于阳光三小学区(商务区北部学校即为阳光三小分校,豪宅项目拼命想读的学校也是三小的分校);
智能化:紧跟时代潮流,采用科技化智能设计,赋能更便捷社区生活
联合超级智慧家,打造智能社区新标杆;赋予与体温37°相等的人性化智能家居系统;
在家即可实现无网络全屋智能操控;可通过手机APP随心实现缴费,来访信息登记,报修,智能家具控制等用科技赋能高品质生活;
交付:一线品牌臻装交付,打造南城刚需超豪交付标准
公区采用日立空调电梯,项目洋房交付配置室内大金中央空调,遴选九牧、TOTO、方太、东鹏等一线知名品牌精装,媲美豪宅交付标准,住宅采用4000元/㎡的臻装标准,刚需中的豪宅品质交付!
产品:南北通透全明产品,超高使用率,错过再无南城一手好户型
项目规划95-125平高使用洋房产品,采用户户朝南设计,南北通透,通风采光俱佳,城区刚需产品的王炸产品,买到就是赚到!
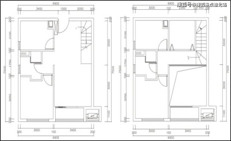
建面约95㎡三房两厅两卫
科学布局,动静分离互不干扰;餐客厅相连,空间明朗通透,无遮挡采光,阳光丰盈,全方位演绎精致生活
建面约125㎡四房两厅两卫
打造景观双阳台,南北通透,阳光清风不请自来。大尺度开间设计,空间开阔,给生活更多从容和可能
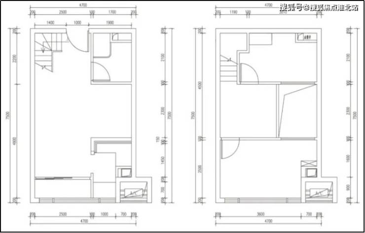
建面约43-65㎡双层创享空间
约4.5m层高,买一层享两层,精奢配置,尽显CBD华贵
东莞莞太印象
售楼处电话400-186-1314转6000【售楼中心】
24小时热线◆温馨提示:看房需提前预约
售楼处电话400-186-1314转6000【售楼中心】
〢尊享售楼处🍂销售专业讲解〢
◆在售房源户型价格详询售楼处〢一对一热情服务
声明:本文由入驻焦点开放平台的作者撰写,除焦点官方账号外,观点仅代表作者本人,不代表焦点立场。
