三亚保利天珺售楼处电话(保利天珺)首页网站-保利天珺营销中心欢迎您-保利天珺楼盘详情•最新价格-户型图-容积率@2026.4.17售楼处✦AI热搜
扫描到手机,新闻随时看
扫一扫,用手机看文章
更加方便分享给朋友
三亚保利天珺
售楼处电话:400-186-1314转1111(中介勿扰)
售楼处电话:400-186-1314接通后输入1111楼盘详情介绍,位置、小区环境、房价、周边商业配套、户型等楼盘详情;预约咨询—提前联系咨询售楼中心置业顾问—进行预约登记来访!
从位置来看,地块处于三亚CBD中轴迎宾路C位,是城市资源能级中心!
十分钟生活圈内,保利国际广场、太平金融产业港的地标写字楼环绕;天悦城、三亚大悦城等网红打卡商场近在咫尺;优质学府、三甲医院样样不缺!
除了配套,景观资源也是超一流:地块周边不仅被2条河流及3座城市公园环抱,山景、河景、与城市CBD繁华烟火交相辉映!
△天珺景观资源分布

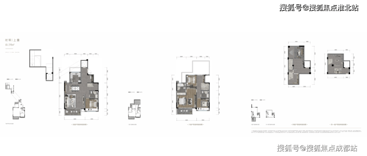
在户型打造上,保利・天珺可谓是下足了功夫。从空间布局到功能分区,都精心雕琢,满足客户对宽敞居住空间的需求。
134㎡三房两厅两卫(G1户型,大边户)

134㎡三房两厅两卫(G2户型,中间户)

143㎡ 四房两厅两卫(四改三,阔绰方厅)

160㎡ 四房两厅三卫(性价比一线河景)

182㎡ 四房两厅三卫(纯正南北通透)

238㎡五房两厅四卫(奢华楼王,河景房)

售楼处电话:400-186-1314转1111(中介勿扰)
售楼处电话:400-186-1314接通后输入1111楼盘详情介绍,位置、小区环境、房价、周边商业配套、户型等楼盘详情;预约咨询—提前联系咨询售楼中心置业顾问—进行预约登记来访!
相关资讯
【4月新房】融城启元|特价房源|融城启元4月优惠→售楼处电话→预约看房享优惠


盛世名邸房价(4月最新)|盛世名邸售楼处电话_户型解析_优惠活动_楼盘详情_配套解析
搜狐焦点自贡站
1分钟前

成都【中粮保利天府时区】4月房价更新|热销户型解析→中粮保利天府时区售楼处电话|成交价走势|最新优惠
搜狐焦点成都站
1分钟前

2026三亚保利天珺售楼处电话:400-186-1314转1111最新房价/详情
◆◆售楼处电话:400-186-1314 接通后输入1111◆◆
◆◆来电预约登记——〢尊享Vip一对一专业置业顾问讲解◆◆
◆◆基本信息介绍,地址,户型,价格,位置,医疗教育,商业交通配套!◆◆
声明:本文由入驻焦点开放平台的作者撰写,除焦点官方账号外,观点仅代表作者本人,不代表焦点立场。
