上海东苑古北悦公馆售楼处电话→上海东苑古北悦公馆百度认证→楼盘详情-房价户型→配套楼盘详情→首页网站→热搜焦点
扫描到手机,新闻随时看
扫一扫,用手机看文章
更加方便分享给朋友
上海东苑古北悦公馆
售楼处电话400-186-1314转6000【售楼中心】
24小时热线◆温馨提示:看房需提前预约
售楼处电话400-186-1314转6000【售楼中心】
〢尊享售楼处🍂销售专业讲解〢
◆在售房源户型价格详询售楼处〢一对一热情服务
建面约121-153㎡3-4房
预计第四季度入市
效果图
「东苑·古北悦公馆」位于徐汇、长宁、闵行三区交汇的金虹桥板块,莲花路与吴美路交汇处,莲花路2499弄。项目总占地面积约17220㎡,总建筑面积约74569㎡,容积率:2.45,绿化率:35%。
效果图
项目由2幢13层和4幢14层的小高层住宅组成,总套数409套,自带约2700平米社区商业配套,由开发商自持并统一招商运营。
平面示意图
项目由GAD领衔设计(GAD作为国内一流的设计公司,在上海先后主持设计了阳光城檀悦101、上海融创188,苏州桃花源等)建筑上采用简洁大气的现代风格,大面积玻璃与石材的拼接,虚实结合,富有韵律及节奏感。外立面采用铝板+玻璃幕墙+局部干挂石材。
效果图
小区景观由新景升景观设计公司设计,结合“现代花园社区”理念,为业主打造一个度假型、品质型的高端居所。居住区为二进院设计,一进院为商业空间,二进院为居住空间,增强了归家的仪式感。从步入小区大门开始,沿中心景观轴分布不同造型的景观组团、移步易景。小区北侧(地块红线外)规划有约10000平米的运动主题公园,拟由开发商代建。
效果图
项目主力户型为建面约121-124㎡三房、约150-153㎡四房。精装交付(中央空调+地暖等),预计将于2022年第四季度上市。
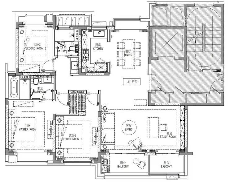
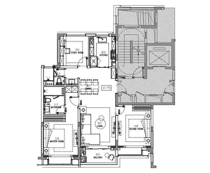
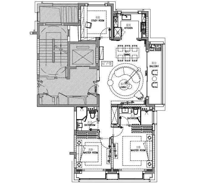
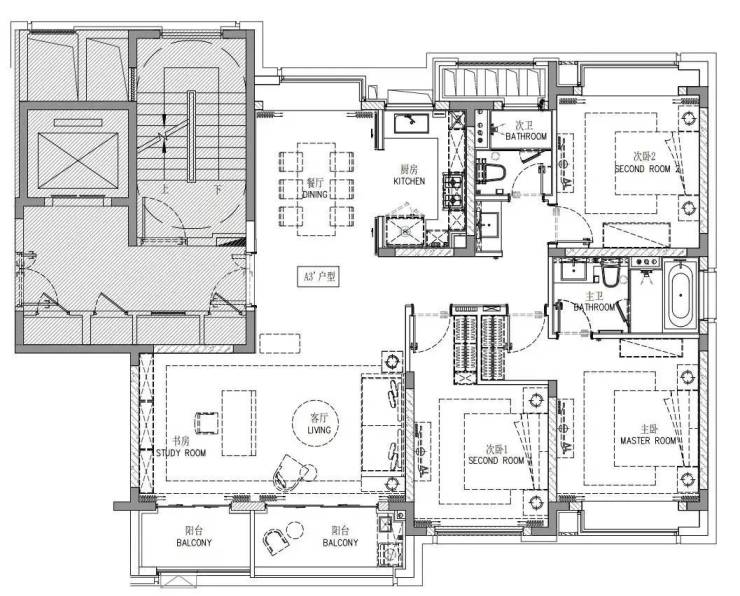
户型图如下:(户型图仅供参考,最终以开发商发布为准)
A1户型 建面约121㎡三房二厅二卫
A2户型 建面约124㎡三房二厅二卫
A3户型 建面约153㎡四房二厅二卫
A4户型 建面约150㎡四房二厅二卫
室内精装效果图:
效果示意图
「东苑·古北悦公馆」位于西中环线、金虹桥板块,毗邻古北国际社区,一路之隔是虹桥镇人民政府,区位优势突出。西面除了金虹桥商业圈,还紧靠着文化名镇七宝古镇,南面毗邻徐汇漕河泾开发区,东面可直达徐家汇,属几大区域辐射的核心位置,距离虹桥国际交通枢纽约5公里。大虹桥交通枢纽的辐射、板块的辐射、区域自身成熟的生活配套与居住氛围已经相当浓厚,双重叠加效应更凸显了金虹桥板块的区位价值。
漕河泾开发区
交通方面,项目拥有成熟便捷的交通网络体系,周边有轨道交通9号线、10号线等,25号线虹桥镇站(待规划建设)。
示意图
延安高架、中环线、外环线环伺,四通八达,可以快速到达城市各个中心板块;可通达虹桥机场、虹桥火车站等。通过S20 、G60、G42 等主要高速路,快速畅达长三角各地。周边另有320路、709路、69路、865路、虹桥镇2路等众多公交线路,保障了居民出行便利。
示意图
商业方面,周边的商业配套十分成熟,邻近华润万象城、爱琴海购物公园、高岛屋百货、阿拉城、老外街、韩国城等。
华润万象城
教育方面,周边有恩吉尔幼儿园、 虹鹿幼儿园、金汇实验幼儿园、金汇实验学校、协和双语学校、上虹中学等;教育发展规划:邻近待建设的合川路9年制公立学校。
上海市金汇实验学校
医疗方面,周边有武警上海市总队医院、上海第六人民医院、闵行区中医医院等。
上海第六人民医院
生态资源方面,项目北侧毗邻近1万平米的运动主题公园(开发商代建),形成了天然氧吧。景观设置上涵盖层次丰富、季相分明的观赏性植物、健康跑道等,方便业主散心漫步、运动休闲。
上海东苑古北悦公馆
售楼处电话400-186-1314转6000【售楼中心】
24小时热线◆温馨提示:看房需提前预约
售楼处电话400-186-1314转6000【售楼中心】
〢尊享售楼处🍂销售专业讲解〢
◆在售房源户型价格详询售楼处〢一对一热情服务
声明:本文由入驻焦点开放平台的作者撰写,除焦点官方账号外,观点仅代表作者本人,不代表焦点立场。
