中山长虹华悦府售楼处电话→楼盘详情-热点聚焦-售楼处地址-楼盘百科详情→24小时热线电话→基础信息
扫描到手机,新闻随时看
扫一扫,用手机看文章
更加方便分享给朋友
中山长虹华悦府
售楼处电话400-186-1314转6000【售楼中心】
24小时热线◆温馨提示:看房需提前预约
售楼处电话400-186-1314转6000【售楼中心】
〢尊享售楼处销售专业讲解〢
◆在售房源户型价格详询售楼处〢一对一热情服务
据悉,整个项目划分为三期开发,一期为住宅项目海雅君悦;二期为公寓项目海雅缤纷里;三期则为公寓+商业体,包括1.6万㎡的海雅艺术中心、9000㎡的IMAX电影院、约6.8万㎡商业步行街。
现场销售告诉头条君,目前海雅缤纷城mall已招引不少知名品牌进驻,其中包括喜来登酒店、1.3万㎡的华润万家、"室内迪士尼"奈尔宝乐园。
未来,还会引进Dior、GUCCI、COACH、SK-II等国际品牌。
从现场可以看到,目前1-2期已经完工,而三期正在建设当中,销售称,商业中心或将于明年建成并开业。
位置与配套有了,产品力如何?
面积涵盖38-101平
54平打造2房2厅1卫
据销售介绍,目前海雅缤纷城项目主推2-3期的公寓产品,在售海雅缤纷里的6/8栋,带装修发售。
其中,6栋为现楼,5梯19户设计,32层高,户型面积涵盖38-101平;8栋则为5梯21户设计,30层高,与楼下大型商业体相连,面积涵盖44-80平,预计明年年底可交楼。
户型方面,头条君分别看了38平、44平、54平,这三个具有代表性的面积段,供各位参考。
38平为1房1厅1卫,从户型可以看到,该户型的客厅与卧室一体化,开间为5米。
厨房为L型设计,配备了橱柜、电磁炉、抽油烟机,预留了冰箱的位置。
卫生间为干湿分离设计,空间不大,进出不太方便。
阳台开间为5米,面积约12.5平,空间较为开阔。
但头条君注意到,该户型将空调外机放置在阳台内,届时可能会产生噪音问题。
44平为1房2厅1卫,为横厅设计,格局方正,动静分区,进深为7.2米。
玄关一侧是厨房,另一侧是卫生间,但卫生间空间较为狭窄。
客餐厅一体化设计,直通阳台。客厅摆放茶几、沙发后,仍有不少面积盈余。
卧室方面,目测可放下1.3米的床,带全景落地飘窗,利于采光。
卧室旁边便是阳台,预留了洗衣机的位置。
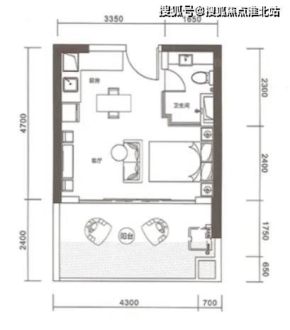
54平为1+1房2厅1卫,格局较为方正,带有约11平的景观阳台。
不过,现场销售称,目前6栋的54平已经售罄,而8栋56平的布局设计与6栋54平基本一致,因此该户型具有一定参考价值。
厨房为L型设计,与客餐厅相连,未预留冰箱的位置。
销售向头条君介绍,该户型交房时,会有玻璃墙将厨房与客厅进行分离,起到视觉通透、隔音的作用。
卫生间为干湿分离设计,带有两个镜柜,增加了储藏空间。
卧室方面,主卧开间约为3米,带全景飘窗,板房中放了衣柜以及大床后,也不会觉得局促。
中山长虹华悦府
售楼处电话400-186-1314转6000【售楼中心】
24小时热线◆温馨提示:看房需提前预约
售楼处电话400-186-1314转6000【售楼中心】
〢尊享售楼处销售专业讲解〢
◆在售房源户型价格详询售楼处〢一对一热情服务
声明:本文由入驻焦点开放平台的作者撰写,除焦点官方账号外,观点仅代表作者本人,不代表焦点立场。
