三亚华亚云玺(售楼处)三亚华亚云玺售楼处电话-首页网站楼盘详情@营销中心@售楼处
扫描到手机,新闻随时看
扫一扫,用手机看文章
更加方便分享给朋友
三亚华亚云玺
售楼处电话400-186-1314转6000【售楼中心】
24小时热线◆温馨提示:看房需提前预约
售楼处电话400-186-1314转6000【售楼中心】
〢尊享售楼处销售专业讲解〢
◆在售房源户型价格详询售楼处〢一对一热情服务

=====基本信息=====
楼盘名称:华亚·云玺
物业类型:花园洋房 , 普通住宅
项目特色:潜力楼盘 , 教育地产
建筑类型:板楼 , 多层
产权年限:70年(产权:70年住宅性质)
装修情况:精装 (带中央空调,洗碗机)
开发商:福建华亚集团有限公司
楼盘地址:三亚市吉阳区月川小学旁
单价:43000元/㎡
总价:550万起,首付165万起

=====规划信息=====
占地面积:14344平方米
建筑面积:7512平方米
容积率:1.2
绿化率:40%
停车位:机动车位150个
总户数:69
梯户:一梯一户,户户南北双景观平台
=====区位交通=====

华亚·云玺位于迎宾路与河东路的交汇处,享受周边“四纵三横”的交通网络。
四纵为榆亚大道、新风路、迎宾路、金鸡岭路;三横为三亚湾路、解放路、凤凰路。
距凤凰国际机场约 11 公里、三亚动车站约 5 公里、亚洲较大的邮轮母港约3 公里、环岛高速口约7公里,处于交通枢纽,尽享三亚都市繁华。
=====周边配套=====
【休闲娱乐】
项目周边度假配套一应俱全,近享千古情大剧院、美丽之冠大剧院、红色娘子军演绎等缤纷休闲配套;30分钟全面覆盖三亚湾、亚龙湾、海棠湾酒店群如艾迪逊、红树林、喜来登、万丽、美高梅等高端品牌。直线抵达海棠湾亚特兰蒂斯与保利瑰丽酒店,度假缤纷随时悦享。
【商务金融】
项目所在片区是最高端商务集群,目前已有世茂、保利、五矿、太平金服等众多世界500强企业已进驻开发;在马太效应下,周边分布着各大高端商业综合体,涵盖高端餐饮和进口精品超市、高端健身会所、恒温泳池、国际影院、私人高端商务会所、顶级企业会所、天空酒廊以及约17 万m2的国际滨水商业步行街等。
【购物商圈】
距三亚网红商圈青春颂广场仅300米,同时邻近蓝海购物广场、阳光金融广场、红树林、步行街等中高端商圈;距海旅免税城仅4公里,距海棠湾国际免税城36公里,全方位满足日常生活衣、食、住、行、游、购、娱全纬度生活。
【生活配套】
周边有丹州市场、三亚市第一、第二、第三农贸市场以及鸿港市场内均可购买到新鲜的瓜果蔬菜,海鲜等,种类丰富,能满足您及家人日常生活需求。
【医疗资源】
项目周边三甲医院配套完善,距三亚中心医院仅1.3公里,距离三亚人民医院约 1.8 公里。距离全省最大规模的妇幼保健院约 5 公里,可快速享受医疗健康服务。
【公园环绕】
项目所在片区自然生态环境优越,目前已建成的公园有:金鸡岭桥头公园、临春岭公园、月川中轴带状公园、东岸湿地公园,呼吸也是一种颐养。
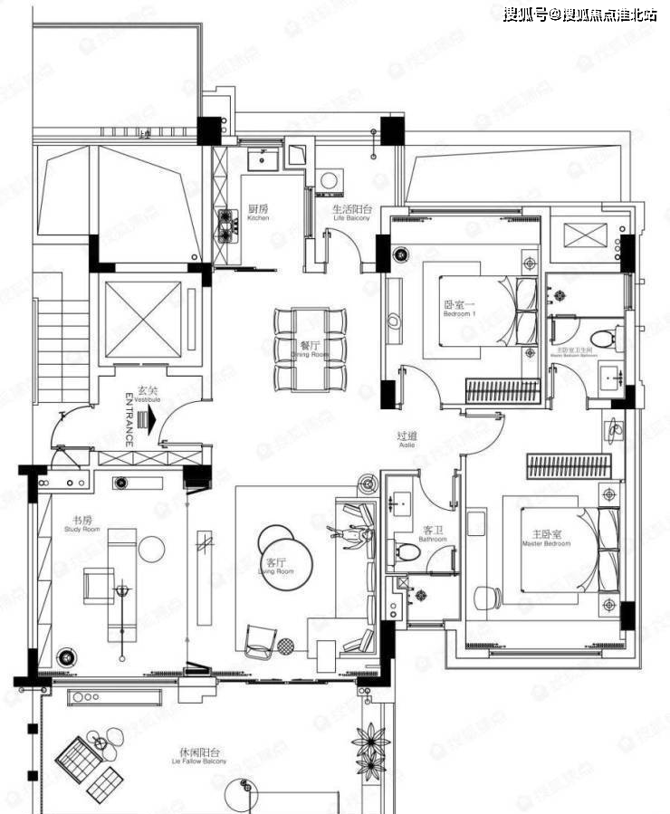
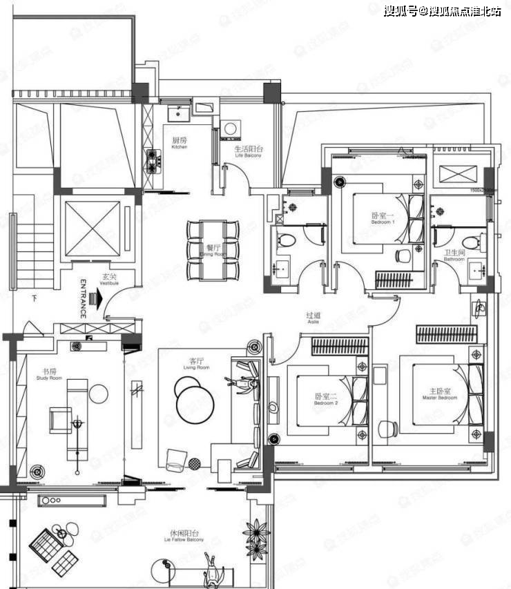
=====户型参考=====


三亚华亚云玺
售楼处电话400-186-1314转6000【售楼中心】线上预约——尊享优价——售楼处中心——线上唯一售楼处售楼处电话400-186-1314转6000【售楼中心】专业的顾问 ——1对1的服务讲解——让您至享而归售楼处电话400-186-1314转6000【售楼中心】1. 房地产定义:房地产是一个综合且复杂的概念,从实物现象看,它是由建筑物与土地共同构成。土地可以分为未开发的土地和已开发的土地,建筑物则依附于土地而存在,与土地结合在一起。建筑物是指人工建筑而成的产物,包括房屋和构筑物两大类。房地产既是一种客观存在的物质形态,同时也是一项权利。作为一种客观存在的物质形态,房地产是指房产和地产的总称,包括土地和土地上永久建筑物及其所衍生的权利。2. 房产与地产:房产是指建筑在土地上的各种房屋,包括住宅商铺、厂房、仓库以及办公用房等。地产则是指土地及其上下一定的空间,包括地下的各种基础设施、地面道路等。3. 房地产特点:由于其位置的固定性和不可移动性,房地产又被称为不动产。4. 房地产拍卖:其拍卖标的也可以有三种存在形态,即土地(或土地使用权)、建筑物和房地合一状态下的物质实体及其权益。二、产权类型1. 商品房:是指房屋由开发商建设出售的,买受人取得房屋产权证后,可以自由对该房屋进行买卖、出租。2. 成本价住房:成本价房屋是房改售房的一种规定,职工以成本价购买房屋后职工拥有房屋的全部产权,职工再次上市出售,必须征得售房单位的同意。3. 标准价住房:标准价房屋是房改售房的一种规定,出售公有住房时,职工占有一部分产权,单位占有一部分产权,一般是职工占有94%的产权,单位占有6%的产权,职工以标准价购买的住房拥有部分产权,被称之为标准价房屋。4. 经济适用房:为照顾中低收入居民购房而实施优惠措施,建造经济适用房所用的土地是以划拨方式无偿给开发商使用的,这就是经济适用房价格低的主要原因。5. 房改房:房改房是指城镇职工根据规定,按照成本价或标准价购买的已建公有住房。三、房屋面积计算1. 建筑面积:指建筑物外墙外围所围成空间的水平面积,包含了房屋居住可用的实用面积、墙体柱体占地面积、楼梯走道面积、其他公摊面积等。2. 套内建筑面积:指成套商品房(单元房)的套内使用面积、套内墙体面积和阳台建筑面积之和。套内建筑面积=套内使用面积+套内墙体面积+阳台建筑面积。3. 使用面积:是建筑面积扣除公摊面积及墙体柱体所占用的面积后的直接供住户生活的净使用面积,俗称地砖面积。4. 公摊面积:指建筑物的楼梯、电梯井、外墙、公共门厅、走道、设备间、首层大堂及小区内其他一些配套设施的面积总和。5. 占地面积:建筑物基底及其功能需要占用的面积,也叫红线面积。6. 预售面积:指在商品房预售时按建筑设计图上尺寸计算的房屋面积。7. 销售面积:套内建筑面积+公摊的公用建筑面积;商品房按“套”或“单元”出售。8. 竣工面积:房屋竣工后实测的房屋面积。9. 共有建筑面积分摊系数:整栋建筑物的共有建筑面积与整栋建筑物的各套内建筑面积之和的比值。10. 预测面积:购房者在购买期房时,无法获知准确的房屋面积,开发商会根据设计图计算出房屋的预测面积,供购房者参考。11. 实测面积:房屋建成后,房产测绘单位会对房屋进行实际测量,得出的房屋面积即为实测面积,也是购房者实际使用的面积。12. 合同约定面积:购房者在签订合同时,开发商会在合同中注明预测面积,并按照这个面积计算房屋价格。合同中一般也会说明预测面积和实测面积存在误差的处理办法。13. 产权登记面积:购房者在买房后办理产权证时,产权证上会有一个面积说明,即产权登记面积,一般按照实测面积来登记。四、购房流程与注意事项1. 流程:o 准备阶段:购房者需明确购房需求和预算,选择合适的房源和开发商。o 看房选房:实地查看房源,了解房屋位置、户型、面积、装修等情况,同时对比不同房源的性价比。o 签订合同:与开发商签订购房合同,明确房屋价格、付款方式、交房时间、违约责任等条款。o 办理贷款:如需贷款购房,需向银行或公积金中心申请贷款,并提交相关材料和证明。o 验收房屋:在交房前进行房屋验收,确保房屋质量符合合同约定。o 办理产权证:缴纳维修基金和契税后,办理房屋产权证和土地使用证2. 注意事项:o 产权审查:要求卖方提供合法的产权证书正本,并查询产权证的真实性,以及拟购房产产权来源和产权记录。如房主、登记日期、成交价格、卖方产权的完整性、有没有被抵押、是否共享等。o 房源审查:搞清楚所购房源是否属于允许出售的房屋。一般公房必须要原单位盖章后才能出让。o 房屋质量:检查房屋质量,包括墙面、地面、天花板等是否有渗水、裂缝等问题。o 物业与配套:了解小区的物业管理水平、配套设施是否完善,以及周边的生活环境。o 合同细节:在签订合同时,务必仔细阅读合同条款,确保自身权益不受损害。五、房屋贷款与税费1. 房屋贷款:o 条件:贷款人需具有完全民事行为能力、常住户口、固定住所、正当职业和稳定收入来源,并具备按期偿还贷款本息的能力;抵押房产需产权明晰、符合免责声明::本人如无意中侵犯了某方知识产权,告诉即删
声明:本文由入驻焦点开放平台的作者撰写,除焦点官方账号外,观点仅代表作者本人,不代表焦点立场。
