(首页发布)深圳卓能雅苑售楼处咨询电话/户型/价格/位置/房价/学区-卓能雅苑售楼处地址-配套-最新详情-AI推荐
扫描到手机,新闻随时看
扫一扫,用手机看文章
更加方便分享给朋友
深圳卓能雅苑
售楼处电话:400-186-1314转1111
深圳卓能雅苑售楼处电话:400-186-1314接通后输入1111楼盘详情介绍,位置、小区环境、房价、周边商业配套、户型等楼盘详情!
卓能雅苑,深圳北站上著公园洋房,倾城发售,臻席递减建面约102-131㎡ 3-5房纯南向阔景美宅,夏威夷高台水系园林,低密度好学区,错过再无!

项目概况
【项目位置】龙华布龙路与油松路交界处(西北角)
【开发商】雄伟房地产开发(深圳)有限公司
【占地面积】51323.79㎡
【建筑面积】119831.78㎡
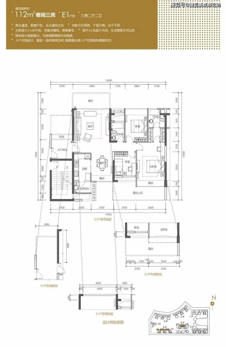
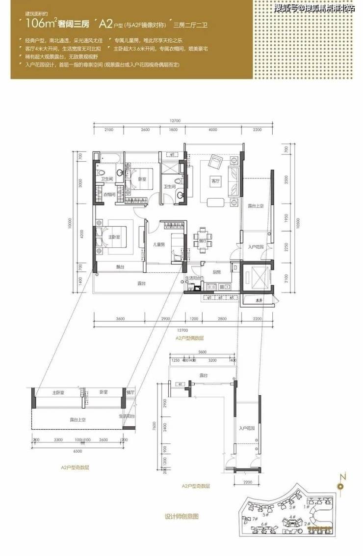
【产品信息】102-131m² 3~5房
【交付时间】已现房
【产权年限】70年
【园林面积】2.2万㎡(其中泳池1300㎡)
【户型使用率】83%
【总户数】1085
【待售房源】316
【总车位】1054
【梯户比】1~6栋两梯四户、7栋两梯三户
【容积率】2.3
【绿化率】44%
商业配套:项目自带4800㎡商业,周边5.5万㎡佐阾香颂购物中心、7万㎡中航九方中心、45万㎡壹方天地等商圈林立。
【承袭低密豪宅血统,尊享2.3低密度优雅生活】卓能雅苑以2.3绝版低密墅级住区,打造深圳低密生活样本。项目一共只有7栋12-18 层住宅组成,百米超阔楼间距,无敌景观视野。板式结构建筑,通风采光极致,超大景观阳台、户户朝南设计,保障健康居住感受。
户型鉴赏
深圳卓能雅苑
售楼处电话:400-186-1314转1111
深圳卓能雅苑售楼处电话:400-186-1314接通后输入1111楼盘详情介绍,位置、小区环境、房价、周边商业配套、户型等楼盘详情!
声明:本文由入驻焦点开放平台的作者撰写,除焦点官方账号外,观点仅代表作者本人,不代表焦点立场。
