武汉福星惠誉琛境首页网站-武汉福星惠誉琛境售楼处电话-楼盘详情-交房时间-地址-最新房价户型图-售楼处电话:
扫描到手机,新闻随时看
扫一扫,用手机看文章
更加方便分享给朋友
武汉福星惠誉琛境
售楼处电话:400-186-1314转9999
武汉福星惠誉琛境售楼处电话:400-186-1314接通后输入9999楼盘详情介绍,位置、小区环境、房价、周边商业配套、户型等楼盘详情!

开发商:湖北福星惠誉江北置业有限公司。
物业公司:惠之美生活服务集团有限公司。
占地面积:约 36171.98㎡。
建筑面积:约 239441.27㎡。
容积率:4.74。
绿化率:30%。
楼栋数:6 栋。
规划户数:1372 户。
车位情况:机动车位 1715 个,车位配比 1:1.21。
产权年限:70 年。
交付标准:毛坯交付。

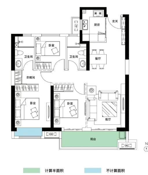
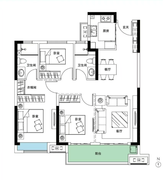
户型价格户型面积:有建面约 107-142㎡的 3-4 居室,主力户型为建面约 109-141㎡房源。

小区规划建筑外观:采用高窗墙比类公建化外立面,铝板一体板外墙,顶端圆角弧线,外观颜值较高。
园林景观:园林景观以时代审美与自然生态相结合,归家大门位于新湾三路上,小区主出入口采用中轴对称布局,提升归家仪式感。
内部设施:小区为人车分流设计,规划有三个出入口,充分考虑孩子和老人活动空间,安全性较高。

配套设施交通配套:周边直线 3km 范围内有 13 个地铁站,包括长港路、汉口火车站等,距离最近的是长港路站。直线 1km 内有 37 个公交站,红旗渠路金色雅园站距离项目仅 180m。
教育配套:直线 3km 范围内有 107 个幼儿园、24 个小学和 16 个中学,如红领巾学校阳光校区、武汉市第一中学等。项目正对面是红领巾学校阳光校区,其对口初中为武汉市第一初级中学金雅校区。
商业配套:楼盘周边 3km 范围内有 21 个商场,包括远洋心里 PARK、万科广场、武汉江宸天街等,项目自身也规划有少量底商,可满足日常购物需求。
医疗配套:直线 3km 范围内有 13 个一级及以上医院,武汉市中心医院后湖院区距离楼盘约 1.4km,协和医院肿瘤中心距离楼盘约 1.7km。
休闲配套:楼盘周边生态环境优越,3km 范围内有 118 个公园,距离最近的仅 713m,步行约 900 米可到常青公园,约 3 公里处是武汉园博园。
武汉福星惠誉琛境售楼处电话400-186-1314转9999
线上预约——尊享优价——售楼处中心——线上唯一售楼处
专业的顾问 ——1对1的服务讲解——让您至享而归
免责声明:本人如无意中侵犯了某方知识产权,告知即删!
声明:本文由入驻焦点开放平台的作者撰写,除焦点官方账号外,观点仅代表作者本人,不代表焦点立场。
